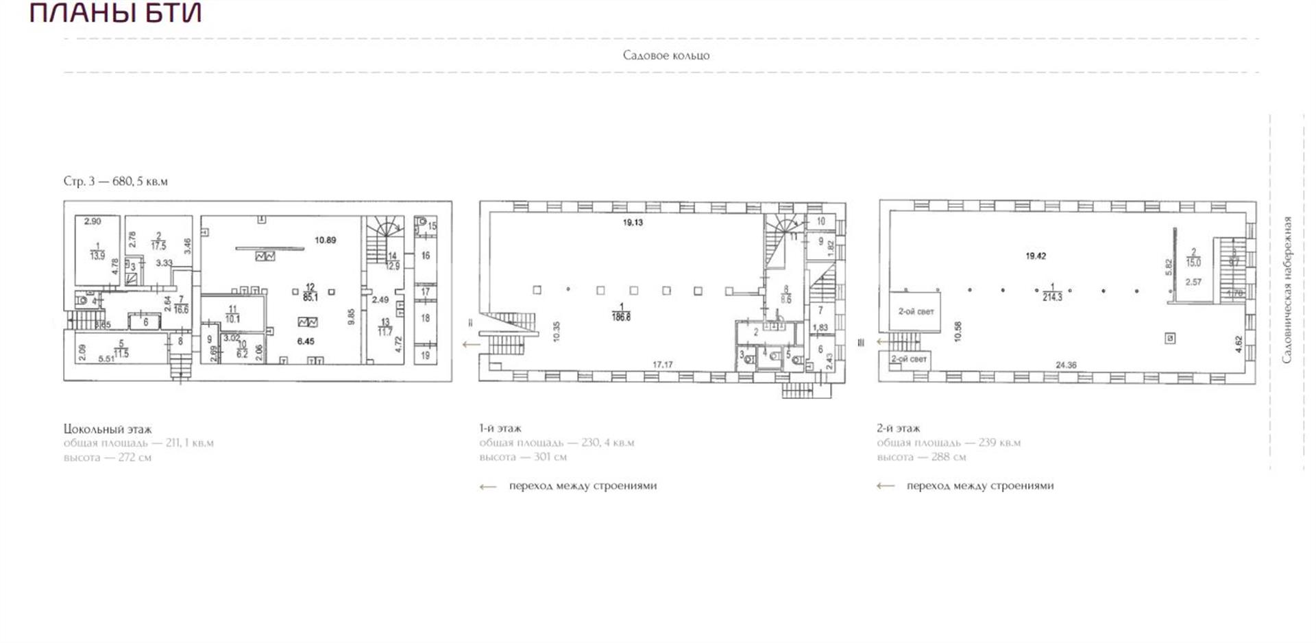
Представительский особняк на первой линии Садового кольца с узаконенной летней верандой! Общая площадь 1184,3 кв.м, всего 3 этажа + цоколь. Организовано несколько входных групп: центральный с улицы и 3 со двора, в т.ч. зона разгрузки-погрузки. Свободная планировка колонного типа, большое количество окон по фасаду. Организовано 6 мокрых точек. Высота потолков 3-3,15 м. Конструктив здания - кирпич, перекрытия ж/б. Выделенная мощность 220 кВт, подведены центральные коммуникации: ХВС, ГВС, канализация, приточно-вытяжная вентиляция, кондиционирование. Отделка за выездом арендатора - ресторан. При здании согласована летняя веранда площадью 200 кв.м.! Земельный участок площадью 538 кв.м. оформлен в долгосрочную аренду до 2050 года. ВРИ: Предпринимательство (4.0) - земельные участки, предназначенные для размещения объектов торговли, общ. питания и бытового обслуживания (1.2.5). Есть возможность парковать три автомобиля за зданием, на огороженной парковке. На фасаде возможна организация вывески. Доступность от метро "Павелецкая" - 7 минут пешком.
оставьте заявку
Похожие предложения
В бизнес центре «Квадрат»
В бизнес центре «Квадрат»
В бизнес центре «Трехгорная мануфактура»
Ирина Трейвас
Управляющий партнёр






















