- Главная
- Коммерческая элитная недвижимость
- Снять коммерческую недвижимость
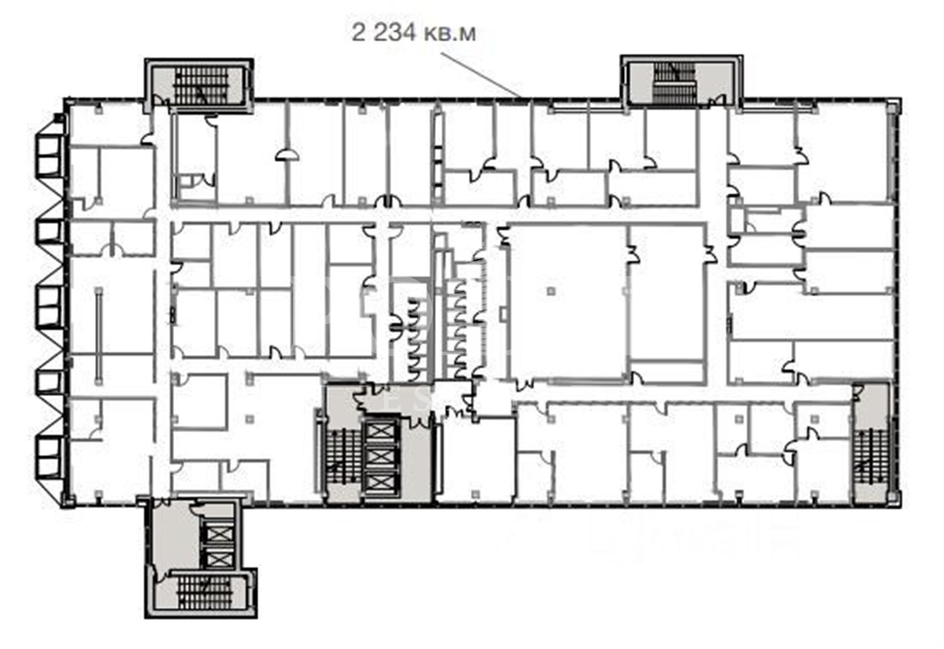
- Офис, 2234 м2 В бизнес центре «Квадрат»
Описание
Предлагается в аренду целиком 5 этаж площадь 2234 кв.м. Планировка смешанная: зона ресепшн, кабинеты и переговорные комнаты, выделенная зона руководства, open-space, с/у и зона кухни. Офис сдается без мебели. По фасаду - витринное остекление, что обеспечивает большое количество дневного света. Готов к въезду с 1 июля 2026 г. Большой наземный паркинг. Коэффициент 1:70, оплачивается дополнительно. Бизнес-центр «Квадрат» предлагает комфорт арендаторам. Кроме непосредственно офисных помещений, в здании предусмотрена сопутствующая инфраструктура: кафе, минимаркет и корпоративная столовая. Метро Давыдково - до 10 минут пешком, удобно добираться до метро Славянский Бульвар - 7 минут на транспорте.
оставьте заявку
Скачать презентацию в pdf
Похожие предложения
Офис, 1756 м2
В МФК «Монарх»
Ленинградский проспект, 31 А
ст. Динамо ,
11 мин
11 мин
ст. Белорусская ,
13 мин
ст. Беговая
11 этаж
Смешанная
без мебели
с отделкой
Офис, 1194.3 м2
В бизнес центре «Трехгорная мануфактура»
Рочдельская улица, 15с11-11А
ст. Улица 1905 года
15 мин
3 этаж
Смешанная
без мебели
с отделкой
loft
Рочдельская улица, 15с44
ст. Краснопресненская
15 мин
ст. Улица 1905 года
15 мин
новое предложение
Open Space
без мебели
с отделкой
Садовническая улица, 84
ст. Павелецкая
7 мин
ст. Таганская
13 мин
Ирина Трейвас
Управляющий партнёр

























