- Главная
- Коммерческая элитная недвижимость
- Снять коммерческую недвижимость
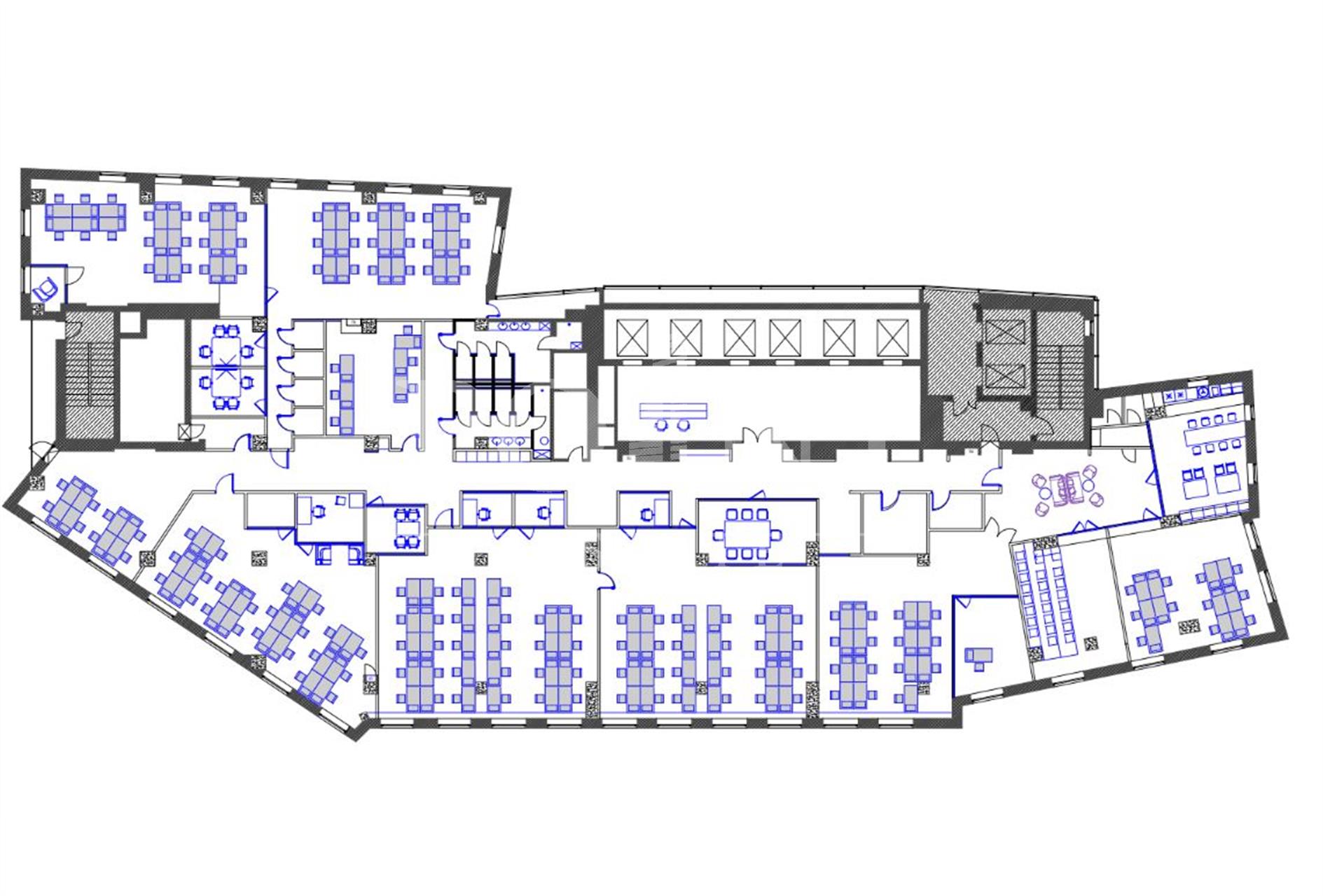
- Офис, 1311.7 м2 В бизнес центре «НОВО»
Описание
В аренду предлагается целиком 15 этаж в бизнес-центре "NOVO". Площадь офиса 1311,7 кв.м., рассадка на 150 сотрудников. Смешанная планировка пространства, офис обставлен новой мебель! Сделана новая дизайнерская отделка. Панорамное фасадное остекление обеспечивает отличные видовые характеристики на Москву! Организованы кухонные зоны и с/у. При здании организована парковка на 370 м/м - возможна аренда за доп.плату. Развитая инфраструктура объекта: столовая, рестораны, кафе, пекарни, магазин - все в шаговой доступности. Транспортная доступность: 10 минут пешком до м. "Савеловская", 13 минут пешком до м. “Марьина Роща”, 1 минута до ТТК.
оставьте заявку
Скачать презентацию в pdf
Похожие предложения
Офис, 1632 м2
В бизнес центре «Квадрат»
Верейская улица, 11
ст. Кунцевская ,
6 мин
7 мин
ст. Славянский бульвар ,
11 мин
ст. Давыдково
4 этаж
Смешанная
без мебели
с отделкой
Ольховская улица, 45с3
ст. Красносельская
9 мин
ст. Бауманская
10 мин
ст. Комсомольская
15 мин
Смешанная
без мебели
с отделкой
loft
Офис, 1194.3 м2
В бизнес центре «Трехгорная мануфактура»
Рочдельская улица, 15с11-11А
ст. Улица 1905 года
15 мин
3 этаж
Смешанная
без мебели
с отделкой
loft
Рочдельская улица, 15с44
ст. Краснопресненская
15 мин
ст. Улица 1905 года
15 мин
новое предложение
Open Space
без мебели
с отделкой
Ирина Трейвас
Управляющий партнёр















