- Главная
- Коммерческая элитная недвижимость
- Снять коммерческую недвижимость
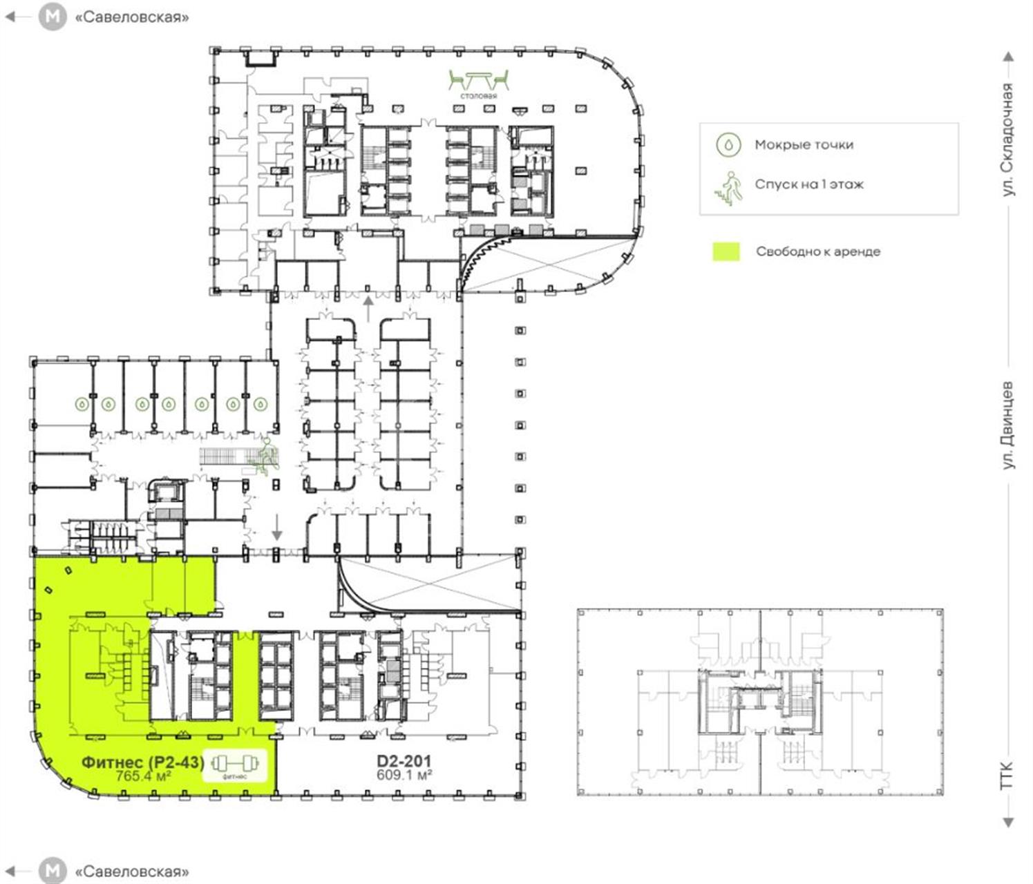
- ПСН, 765.4 м2 В бизнес центре «STONE Савеловская»
Описание
Помещение под фитнес-центр в новом бизнес-центре класса "А" STONE Савеловская. Блок имеет входные группы с лобби бизнес-центра, помещение предлагается без отделки, состояние - shell&core. Высокие потолки, открытая планировка. Организованы мокрые точки. По фасаду - витринное остекление. Новая, 24-этажная офисная башня в составе бизнес-центра класса А. В проекте предусмотрены подземный паркинг, многоуровневый наземный паркинг, гостевой паркинг, а также паркинг для каршеринга. Благоустроенная территория с зонами для прогулок, активного отдыха и работы Проект также выделяется развитой инфраструктурой. Общая площадь её объектов составит 10 000 м2. Среди знаковых точек: коворкинг с выходом на стилобат, многофункциональный фитнес-клуб, столовая, кафе и рестораны, а также салоны красоты, магазины, аптеки, банкоматы - все, что поможет решить любой вопрос в течение дня. Проект расположен всего в 7-ми минутах от метро и в 500 метрах от ТТК. Бизнес-центр состоит из двух башен высотой 100 метров, объединенных функциональным стилобатом, общая наземная площадь составляет 93 000 кв.м. Строительные работы завершатся в 2024-м.
оставьте заявку
Скачать презентацию в pdf
Похожие предложения
Офис, 312 м2
В бизнес центре «Квадрат»
Верейская улица, 11
ст. Кунцевская ,
6 мин
7 мин
ст. Славянский бульвар ,
11 мин
ст. Давыдково
2 этаж
Open Space
без мебели
с отделкой
Офис, 751 м2
В административном здании «Гиляровского 65с1»
Гиляровского улица, 65с1
ст. Рижская
7 мин
ст. Проспект мира
12 мин
5 этаж
Кабинетная
без мебели
с отделкой
loft
ПСН, 265.5 м2
В бизнес центре «Рочдельская улица, 15с35»
Рочдельская улица, 15с35
ст. Краснопресненская
12 мин
1 этаж
Open Space
частично с мебелью
с отделкой
3-й Монетчиковский переулок, 4c1
ст. Павелецкая
9 мин
ст. Добрынинская
12 мин
3 этаж
Кабинетная
без мебели
с отделкой
Ирина Трейвас
Управляющий партнёр









