- Главная
- Коммерческая элитная недвижимость
- Снять коммерческую недвижимость
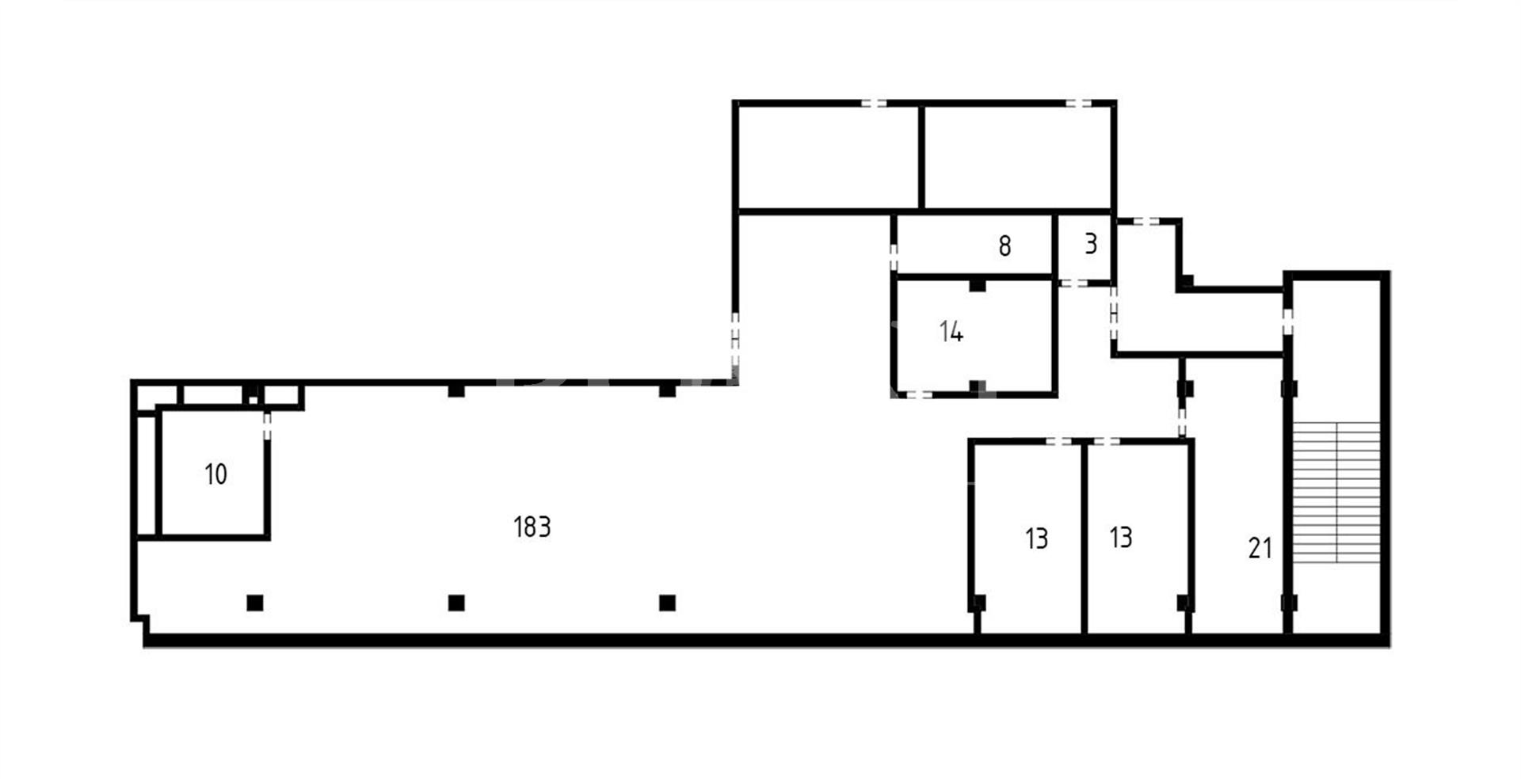
- Офис, 312 м2 В бизнес центре «Квадрат»
Описание
Предлагается в аренду небольшой офисный блок на 2 этаже. Общая площадь 312 кв.м., приоритетно открытой планировки: зона ресепшн, оpen-space, кабинеты, переговорная, с/у и кухня. Офис предлагается без мебели. По периметру большие витринные окна, что обеспечивает большое количество дневного света в офисе. Большой наземный паркинг, ставка аренды 12 000 руб/мес. Коэффициент 1:70, оплачивается дополнительно. Бизнес-центр «Квадрат» предлагает комфорт арендаторам. Кроме непосредственно офисных помещений, в здании предусмотрена сопутствующая инфраструктура: кафе, мини-маркет и корпоративная столовая. Метро Давыдково - до 10 минут пешком, удобно добираться до метро Славянский Бульвар - 7 минут на транспорте.
оставьте заявку
Скачать презентацию в pdf
Похожие предложения
Офис, 751 м2
В административном здании «Гиляровского 65с1»
Гиляровского улица, 65с1
ст. Рижская
7 мин
ст. Проспект мира
12 мин
5 этаж
Кабинетная
без мебели
с отделкой
loft
ПСН, 265.5 м2
В бизнес центре «Рочдельская улица, 15с35»
Рочдельская улица, 15с35
ст. Краснопресненская
12 мин
1 этаж
Open Space
частично с мебелью
с отделкой
3-й Монетчиковский переулок, 4c1
ст. Павелецкая
9 мин
ст. Добрынинская
12 мин
3 этаж
Кабинетная
без мебели
с отделкой
Офис, 320.4 м2
В особняке «Каретный Ряд улица, 8»
Каретный Ряд улица, 8
ст. Чеховская
12 мин
ст. Цветной бульвар
14 мин
ст. Маяковская
15 мин
4 этаж
Смешанная
без мебели
с отделкой
Ирина Трейвас
Управляющий партнёр












