- Главная
- Коммерческая элитная недвижимость
- Купить коммерческую недвижимость
- Офис, 328.3 м2 В особняке «Life Time»
Описание
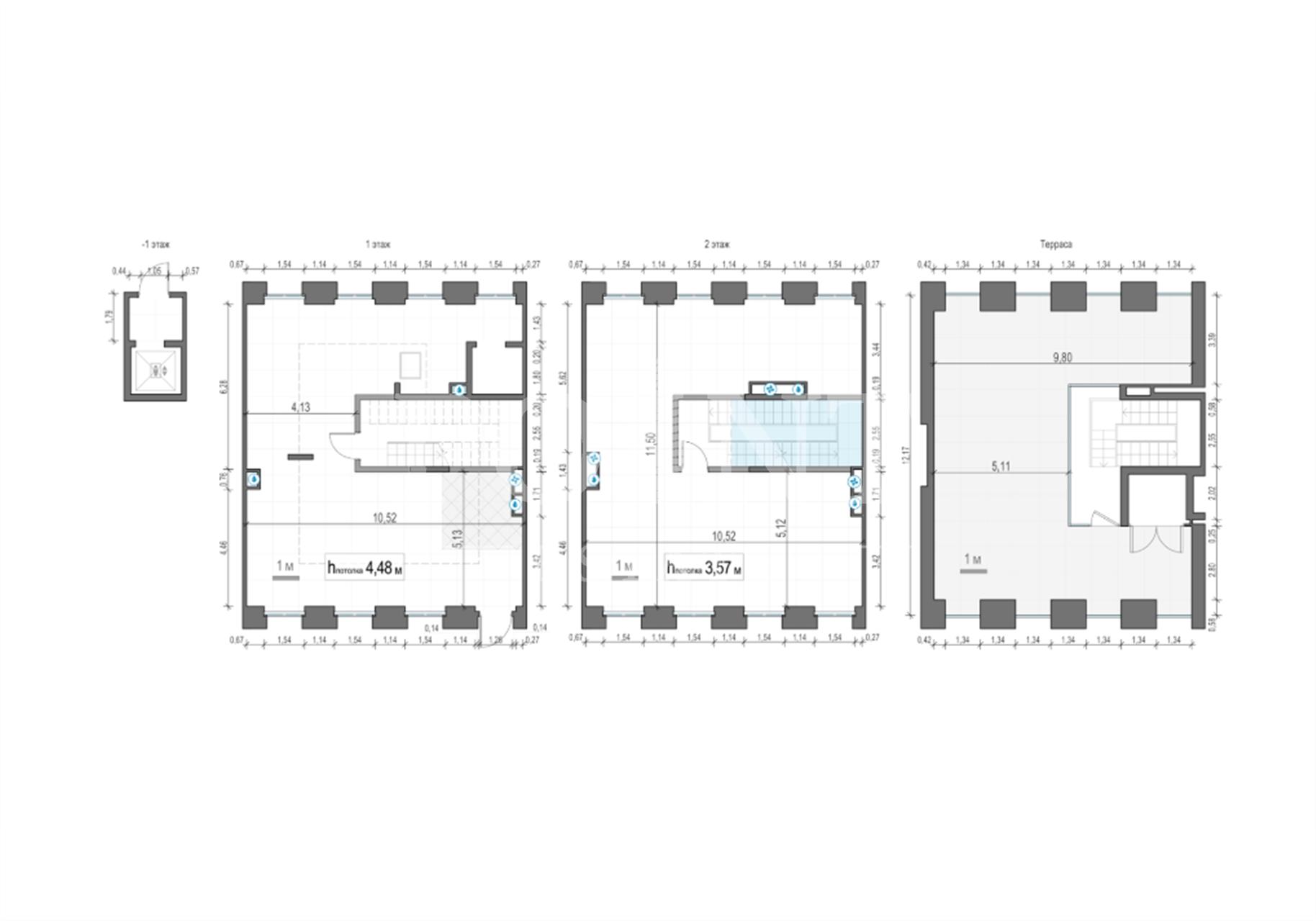
Офисная вилла в роскошном квартале Life Time - редкий формат обособленной офисной недвижимости. Роскошная 2-х этажная офисная вилла площадью 328,3 кв.м. с открытой террасой площадью 82 кв.м. Предусмотрен собственный вход с ул. Сергея Макеева, отдельный лифт в подземный паркинг. Правильная форма помещения и открытая планировка позволяют эффективно зонировать и использовать пространство. Высота потолков 4,32 метра. Панорамное остекление на 3-и стороны обеспечивают яркое естественное освещение. Наличие мокрых точек дает возможность обустроить полноценную кухню и санузлы, а собственную террасу можно использовать в качестве варкаут-зоны или пространства для работы и отдыха. Ввод в эксплуатацию II квартал 2026 г. Возможно использование под разные виды деятельности: Family офис, бутик/шоу-рум, представительство, кофейня и тд.
оставьте заявку
Скачать презентацию в pdf
Похожие предложения
Большой Саввинский переулок, 12с3
ст. Спортивная
12 мин
ст. Фрунзенская
18 мин
Офис, 260 м2
В МФК «Дом Правды»
Правды улица, 24
ст. Савеловская
9 мин
новое предложение
1 этаж
Смешанная
с мебелью
с отделкой
офис с террасой
г. Химки, ул. Молодежная
ст. Планерная ,
8 мин
ст. Сходненская ,
8 мин
новое предложение
1 этаж
Смешанная
частично с мебелью
с отделкой
ПСН, 193.7 м2
В бизнес центре «стр.1 Lucky»
2-я Звенигородская улица, 12с1
ст. Улица 1905 года
5 мин
1 этаж
Open Space
без мебели
под чистовую отделку
Ирина Трейвас
Управляющий партнёр








