- Главная
- Коммерческая элитная недвижимость
- Снять коммерческую недвижимость
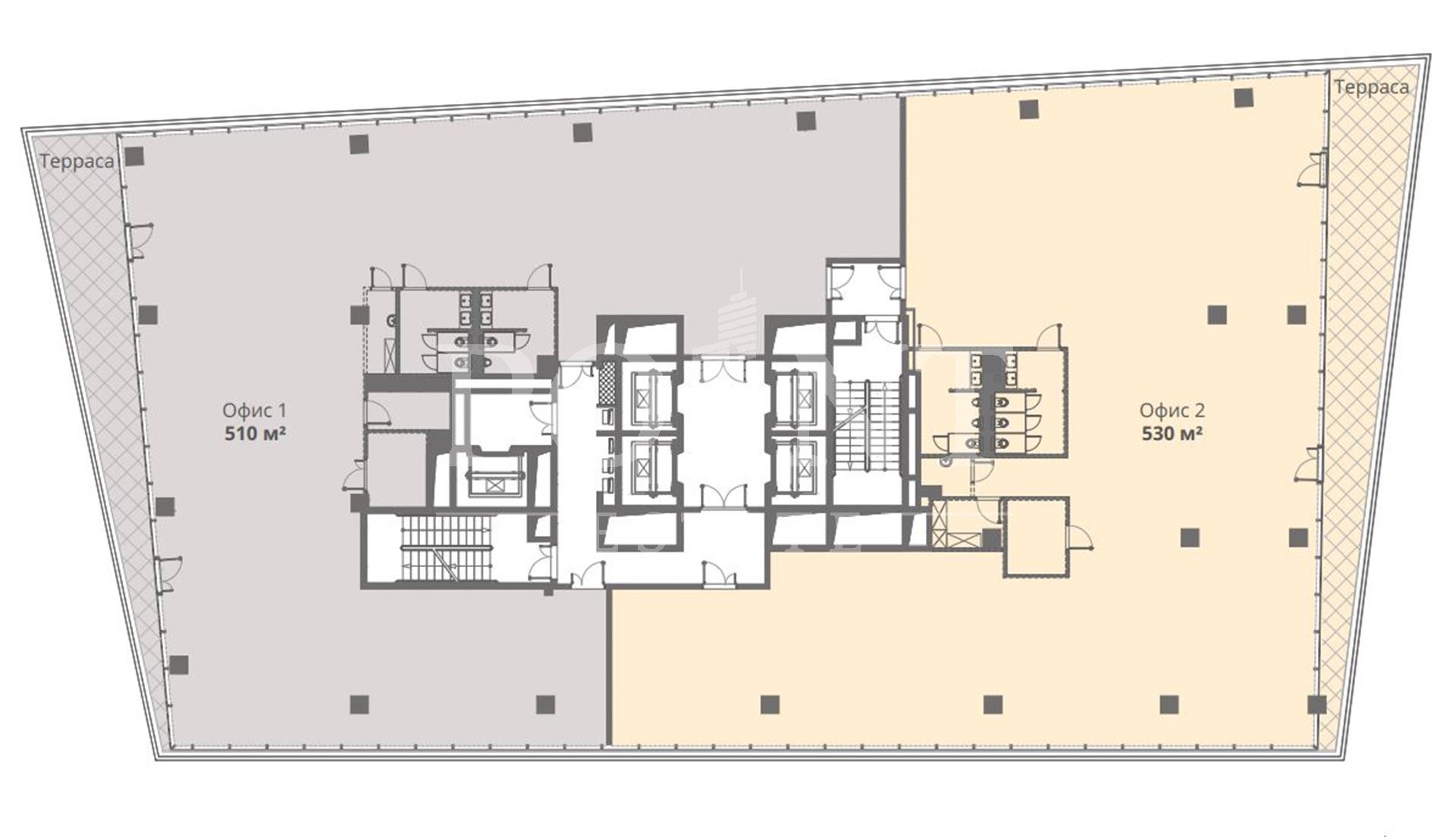
- Офис, 459 м2 В бизнес центре «GEOLOG»
Описание
Предлагается в аренду офисный блок 450 кв.м. Блок на высоком 11-м этаже. Новый Бизнес-Центр GEOLOG, класс А. Уникальное офисное пространство, занимает половину этажа. Своя собственная терраса. Высокий потолок 6 м с закладными под антресоль и возможностью увеличить площадь на 40%. Объект вводится в эксплуатацию в конце 2023 года. Блоки передаются без отделки, с предоставлением арендных каникул. Есть возможность сделать отделку под Арендатора. Новый свежий объект в локации станции метро Калужская. Подземный паркинг по ставке 18 000 руб за м/м.
оставьте заявку
Скачать презентацию в pdf
Похожие предложения
Офис, 312 м2
В бизнес центре «Квадрат»
Верейская улица, 11
ст. Кунцевская ,
6 мин
7 мин
ст. Славянский бульвар ,
11 мин
ст. Давыдково
2 этаж
Open Space
без мебели
с отделкой
Офис, 1000 м2
В административном здании «Гиляровского 65с1»
Гиляровского улица, 65с1
ст. Рижская
7 мин
ст. Проспект мира
12 мин
1 этаж
Кабинетная
без мебели
с отделкой
loft
Офис, 751 м2
В административном здании «Гиляровского 65с1»
Гиляровского улица, 65с1
ст. Рижская
7 мин
ст. Проспект мира
12 мин
5 этаж
Кабинетная
без мебели
с отделкой
loft
Офис, 721 м2
В бизнес центре «Проектируемый 4062-й проезд, 6с25»
Проектируемый 4062-й проезд, 6с25
ст. Технопарк
3 мин
3 этаж
Смешанная
без мебели
с отделкой
Ирина Трейвас
Управляющий партнёр





