- Главная
- Коммерческая элитная недвижимость
- Снять коммерческую недвижимость
- Офис, 300 м2 В административном здании «Новослободская улица, 16»
ID 97104
Офис, 300 м2 В административном здании «Новослободская улица, 16»
Новослободская улица, 16
Описание
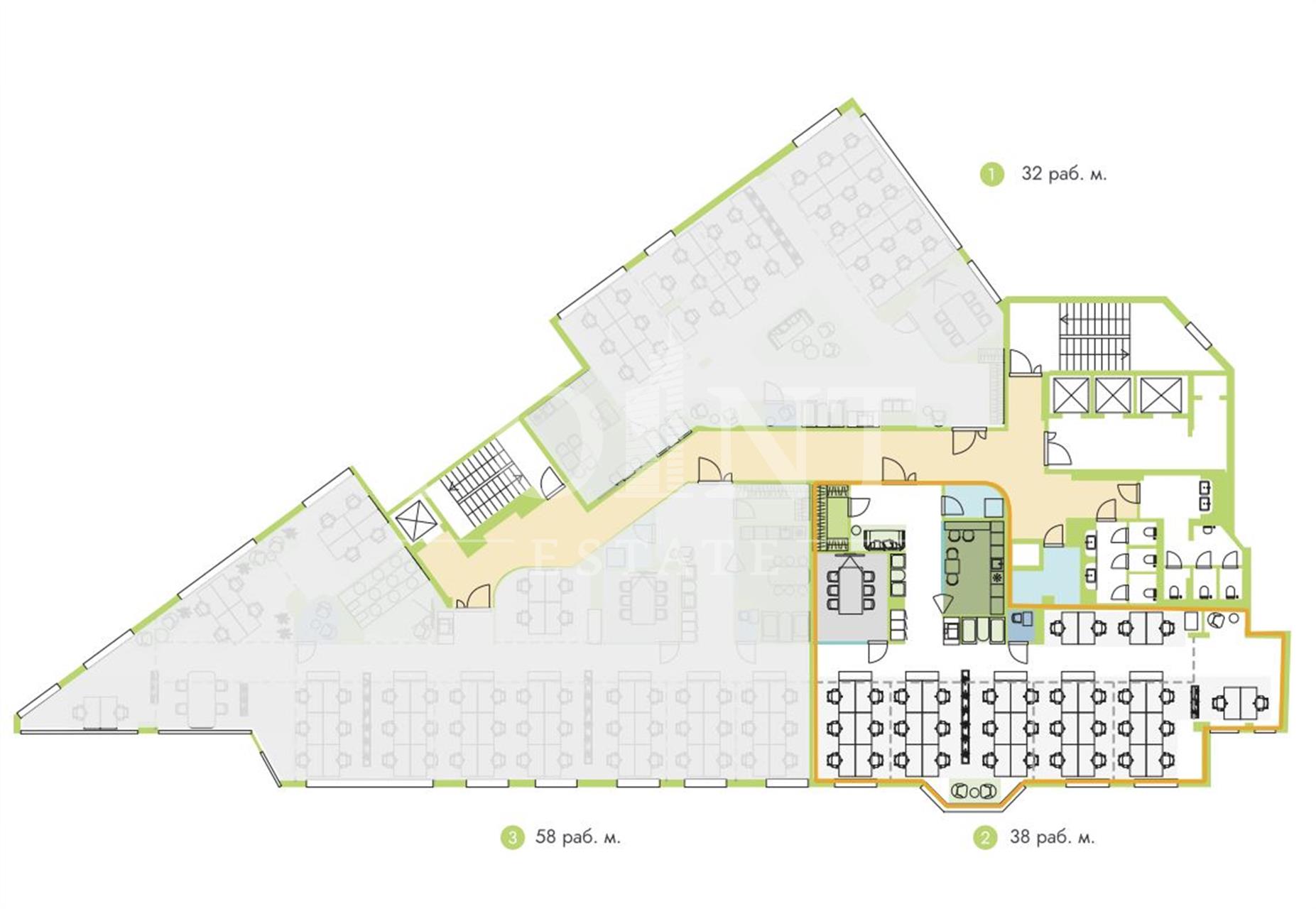
В аренду предлагается изолированный офис на 5-м этаже с сервисным обслуживанием под ключ! Офис рассчитан на 38 рабочих мест, пространство полностью укомплектовано рабочей мебелью и техникой. В офисе выполнена новая дизайнерская отделка. Смешанная планировка: лаундж зона, переговорная комната, кухонная зона, open-space с возможностью зонирования на кабинеты, с/у. Готов к оперативному заезду. Высокие потолки под 3.8 метра! В здании организован лифт на каждый этаж. На последнем этаже есть выход на эксплуатируемую большую террасу. В ставку аренды включены все расходы: налог, эксплуатация и коммунальные платежи, ежедневный клининг, персональный администратор, интернет, канцелярия и расходные материалы для работы. чай/кофе/вода, мебель и техника, охрана, доступ в здание 24/7 и тд. В здании есть небольшая парковка на 15 машиномест. Метро "Менделеевская" находится в 10 метрах от здания!
оставьте заявку
Скачать презентацию в pdf
Похожие предложения
Офис, 698 м2
В бизнес центре «Квадрат»
Верейская улица, 11
ст. Кунцевская ,
6 мин
7 мин
ст. Славянский бульвар ,
11 мин
ст. Давыдково
5 этаж
Смешанная
без мебели
с отделкой
Офис, 615 м2
В бизнес центре «Ferro Plaza»
Кржижановского улица, 14к3
ст. Профсоюзная
6 мин
ст. Новые Черемушки
15 мин
5 этаж
Смешанная
без мебели
с отделкой
Офис, 295 м2
В бизнес центре «Wall Street»
Валовая улица, 35
ст. Добрынинская
4 мин
ст. Павелецкая
10 мин
ст. Серпуховская
6 мин
8 этаж
Смешанная
без мебели
с отделкой
Офис, 363 м2
В бизнес центре «Wall Street»
Валовая улица, 35
ст. Добрынинская
4 мин
ст. Павелецкая
10 мин
ст. Серпуховская
6 мин
7 этаж
Смешанная
без мебели
с отделкой
Ирина Трейвас
Управляющий партнёр

















