- Главная
- Коммерческая элитная недвижимость
- Снять коммерческую недвижимость
- Офис, 480.6 м2 В бизнес центре «Алгоритм»
ID 92783
Офис, 480.6 м2 В бизнес центре «Алгоритм»
ст. Новые Черемушки
Академика Пилюгина улица, 22
Описание
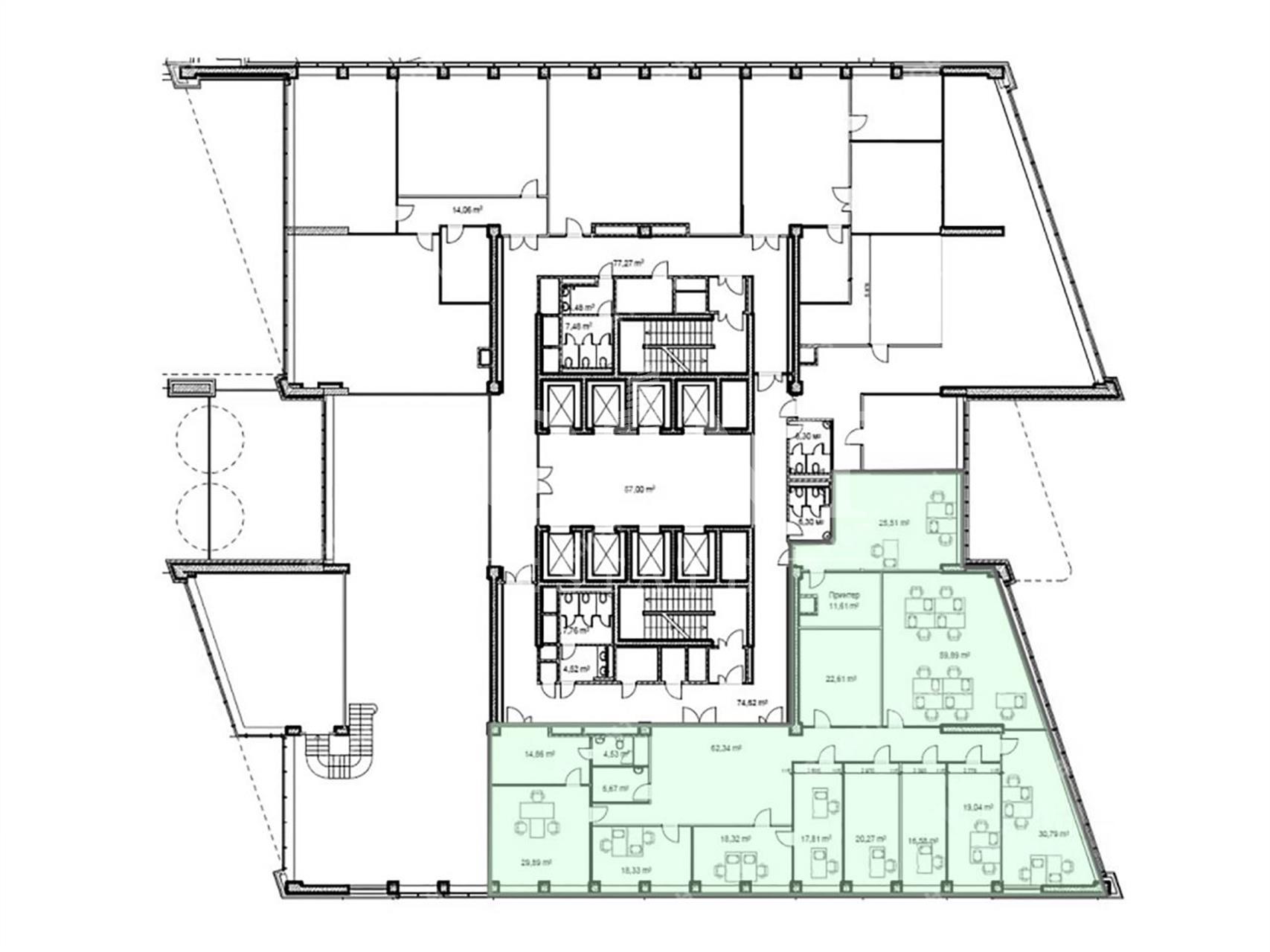
В Бизнес-Центре Алгоритм предлагается в аренду офис общей площадью 480,6 кв.м. на 2 этаже. Офис готов к въезду с 1 марта 2026 года. Планировка смешанная: с теклянные перегородки, ковролин, панорамные окна и высокий уровень инсоляции. Двухуровневый подземный паркинг. 1:85 коэффициент. 12 500 рублей + ндс за м/м. Есть гостевой паркинг с почасовой оплатой. Дизайн фасада, входной группы, общих зон БЦ , концепт благоустройства разработан известной студией дизайна SCG INTERNATIONAL. Класс А, 2015 г. постройки. Своя столовая. кафе и кофе-поинты, банкоматы и шаттл-басы от м. Новые Черемушки. Арендатор имеет право доступа в Бизнес-Центр 24х7.
Алгоритм
Узнайте больше О бизнес-центре
Посмотрите информацию об инфраструктуре, истории и других объектах недвижимости.
ПодробнееРасположение
Академика Пилюгина улица, 22
оставьте заявку
Скачать презентацию в pdf
Похожие предложения
Офис, 538.04 м2
В бизнес центре «Красный Пролетарий»
Краснопролетарская улица, 16с1
ст. Новослободская
9 мин
ст. Достоевская
10 мин
новое предложение
3 этаж
Смешанная
частично с мебелью
с отделкой
Офис, 1000 м2
В административном здании «Гиляровского 65с1»
Гиляровского улица, 65с1
ст. Рижская
7 мин
ст. Проспект мира
12 мин
1 этаж
Кабинетная
без мебели
с отделкой
loft
Офис, 721 м2
В бизнес центре «Проектируемый 4062-й проезд, 6с25»
Проектируемый 4062-й проезд, 6с25
ст. Технопарк
3 мин
3 этаж
Смешанная
без мебели
с отделкой
Офис, 809.2 м2
В бизнес центре «Новион»
Самарская улица, 1
ст. Проспект мира ,
4 мин
13 мин
ст. Достоевская
34 этаж
Смешанная
с мебелью
с отделкой
Ирина Трейвас
Управляющий партнёр












