- Главная
- Коммерческая элитная недвижимость
- Снять коммерческую недвижимость
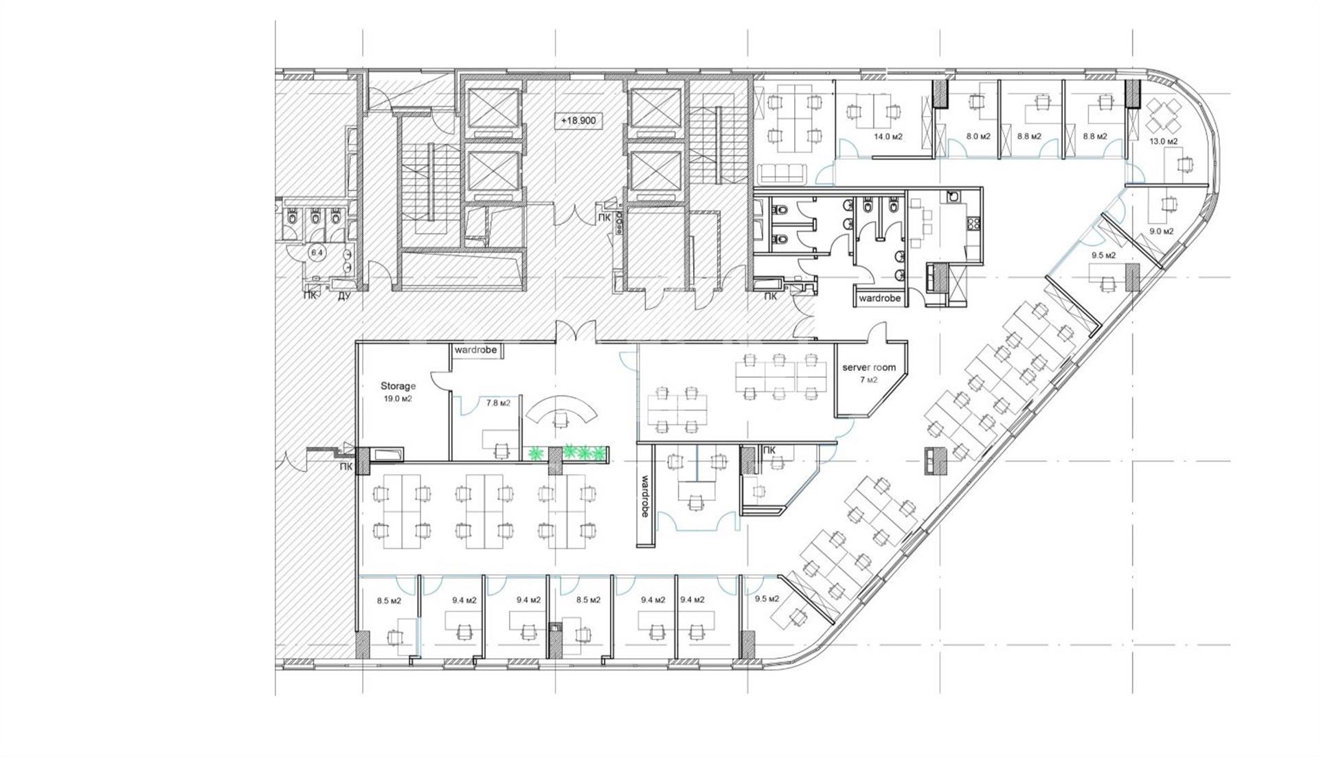
- Офис, 661 м2 В бизнес центре «Двинцев»
Описание
Предлагается под аренду офисный блок площадью 661 кв.м. на 4 этаже, рассчитанный на 70 сотрудников. Планировка: 15 кабинетов, open-space, 3 переговорных, серверная, кухня, санузел. В помещениях выполнен качественный ремонт. Есть своя собственная серверная. Насыщенная инфраструктура внутри здания. Возможна аренда машиномест на подземном/наземном паркинге. Бизнес-центр "Двинцев" расположен по адресу Москва, СВАО, район Марьина Роща, в пешей доступности от метро Савёловская - 10 мин, метро Марьина роща -13 мин. Подъезжать к комплексу удобно со стороны Сущевского Вала, проехав от ТТК всего 350 м. Близость Третьего Транспортного и Садового кольца, Бутырской и Шереметьевской улицы, а также Дмитровского, Алтуфьевского и Ярославского шоссе, определяют ключевые достоинства расположения здания. Рядом есть выезд на Ленинградский проспект (3 км), по которому открывается прямой путь до аэропорта Шереметьево. Расстояние до Кремля – менее 8 км.
оставьте заявку
Скачать презентацию в pdf
Похожие предложения
Офис, 698 м2
В бизнес центре «Квадрат»
Верейская улица, 11
ст. Кунцевская ,
6 мин
7 мин
ст. Славянский бульвар ,
11 мин
ст. Давыдково
5 этаж
Смешанная
без мебели
с отделкой
Офис, 1000 м2
В бизнес центре «Ferro Plaza»
Кржижановского улица, 14к3
ст. Профсоюзная
6 мин
ст. Новые Черемушки
15 мин
3 этаж
Смешанная
без мебели
с отделкой
Офис, 386.36 м2
В бизнес центре «Садовая Галерея»
Малая Сухаревская площадь, 12
ст. Сухаревская
1 мин
4 этаж
Смешанная
без мебели
с отделкой
Офис, 823.5 м2
В бизнес центре «Садовая Галерея»
Малая Сухаревская площадь, 12
ст. Сухаревская
1 мин
1 этаж
Смешанная
без мебели
с отделкой
Ирина Трейвас
Управляющий партнёр


















