- Главная
- Коммерческая элитная недвижимость
- Снять коммерческую недвижимость
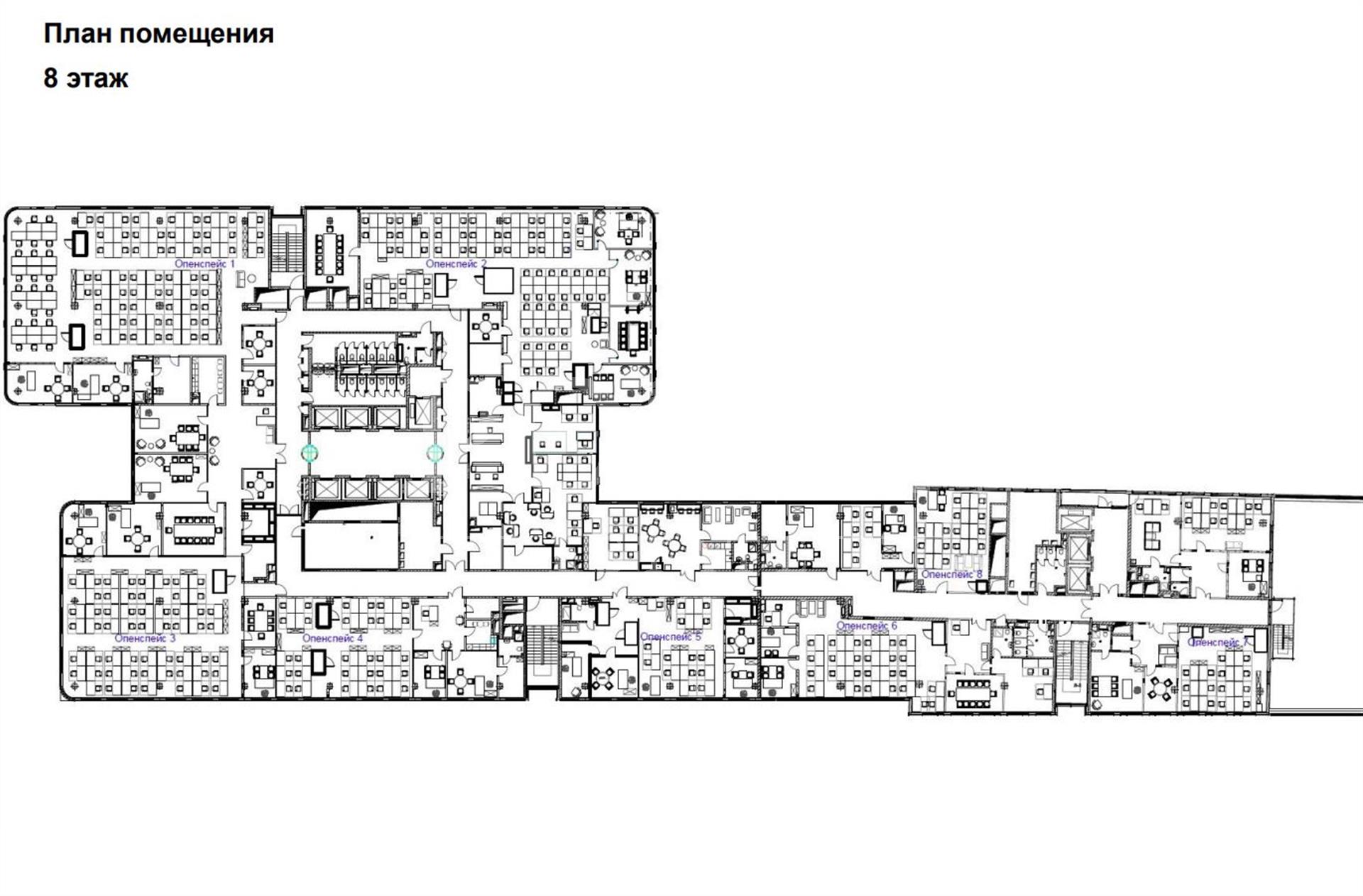
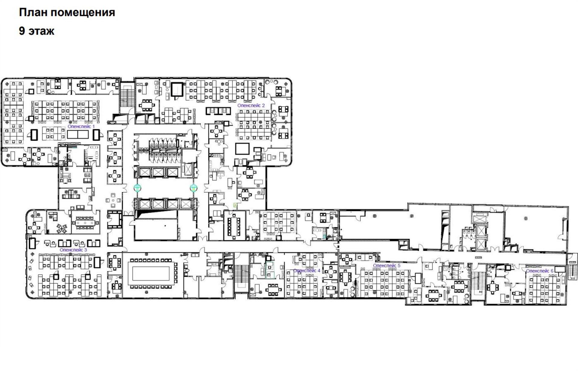
- Офис, 9700 м2 В бизнес центре «ОАЗИС»
Описание
В аренду предлагается несколько этажей с выходами на приватные террасы в рамках премиального бизнес-центра класса А на 1-й линии Садового Кольца. Общая площадь 9700 кв.м., средняя площадь этажа 3150 кв.м. Рассдка на этаж до 250 сотрудников. Выполнена качественная отделка офиса, смешанная планировка. Есть выходы на приватные балконы. Высокие потолки - 3 метра, панорамные виды на Москву! В здании организована пропускная система, развитая инфраструктура. Имеется подземный паркинг, возможна аренда машиномест по ставке 32 000 руб/мес. Доступность от метро "Октябрьская" - 5 минут. Офис готов к заезду во II квартале 2027 года.
оставьте заявку
Скачать презентацию в pdf
Похожие предложения
Офис, 238.15 м2
В бизнес центре «Upside Останкино»
Огородный проезд, 20
ст. Фонвизинская
5 мин
ст. Бутырская
6 мин
3 этаж
Open Space
без мебели
без отделки
2-я Ямская улица, вл.9
ст. Марьина роща
7 мин
ст. Савеловская
12 этаж
Open Space
без мебели
без отделки
2-я Ямская улица, вл.9
ст. Марьина роща
7 мин
ст. Савеловская
6 этаж
Open Space
без мебели
без отделки
Офис, 172.6 м2
В бизнес центре «Парк Победы»
Василисы Кожиной улица, 1
ст. Багратионовская
12 мин
ст. Парк победы
15 мин
5 этаж
Open Space
без мебели
с отделкой
Ирина Трейвас
Управляющий партнёр

















