- Главная
- Коммерческая элитная недвижимость
- Снять коммерческую недвижимость
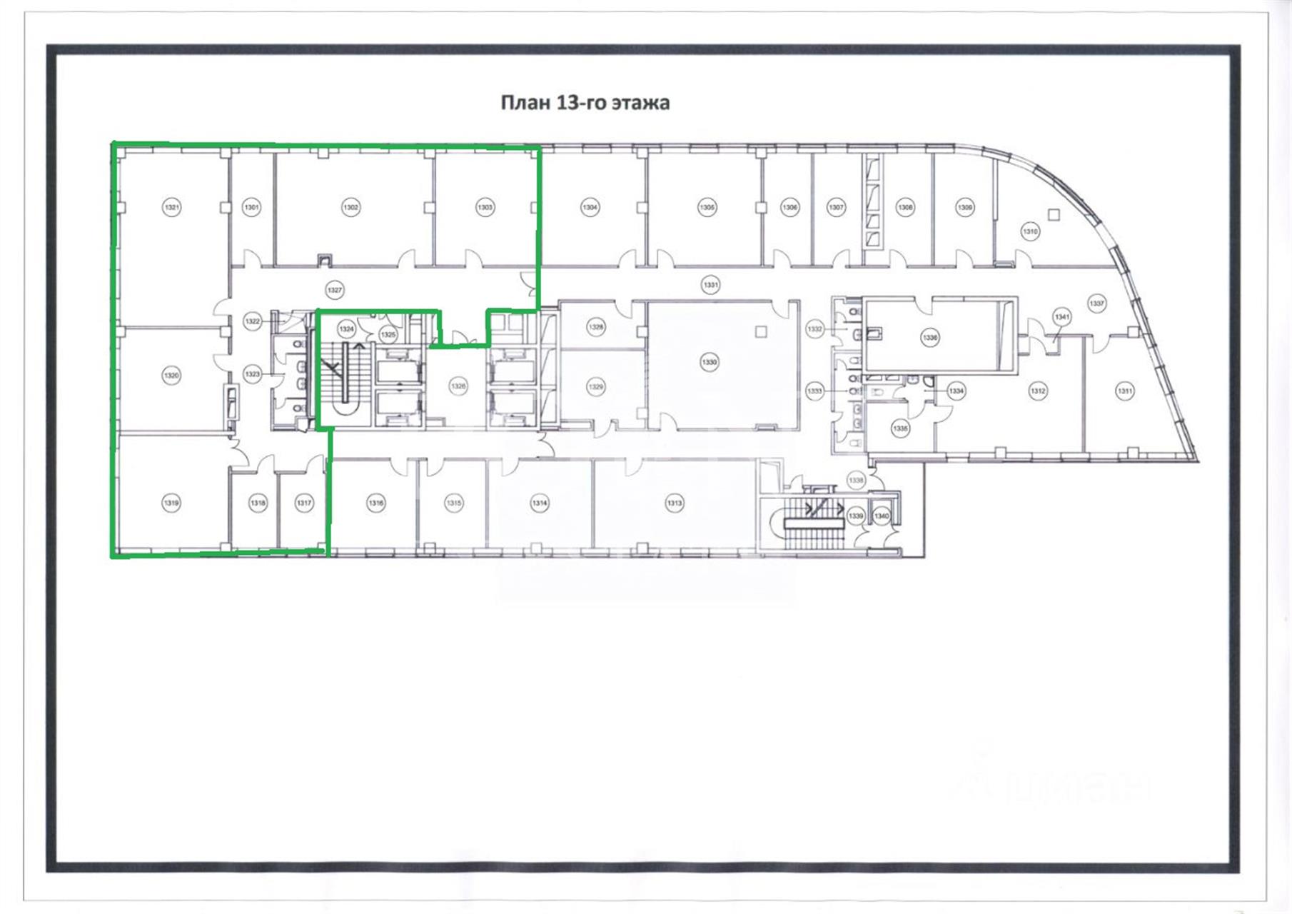
- Офис, 352.95 м2 В бизнес центре «Ямское плаза»
ID 82904
Офис, 352.95 м2 В бизнес центре «Ямское плаза»
5-я Ямского Поля улица, 5с1
Описание
В аренду предлагается часть 13 этажа площадью 352 кв.м. Готовая офисная отделка, кабинетная планировка. Высота потолков - 3,2 метра. Помещение оборудовано центральной системой кондиционирования, приточно-вытяжной вентиляцией, спринклерной системой пожаротушения. Здание оборудовано 4-мя современными грузопассажирскими лифтами, один из которых идет из подземного паркинга. Обширная двухуровневая подземная парковка на 60 м/м. В непосредственной близости от бизнес-центра - наземная охраняемая парковка на 40 м/м. (оплата отдельно). Расположение объекта в САО Москвы имеет определяющее значение, ближайшая станция метро Белорусская, в районе прохождения главных магистралей столицы: Тверская улица, Ленинградский и Кутузовский проспекты, Дмитровское шоссе. Садовое и Третье транспортное кольцо обеспечивают хорошую транспортную доступность к деловым кварталам Москвы, аэропортам "Шереметьево 1 и 2", вокзалам.
оставьте заявку
Скачать презентацию в pdf
Похожие предложения
Офис, 262 м2
В бизнес центре «Гиляровского улица, 4с5»
Гиляровского улица, 4с5
ст. Сухаревская
2 мин
ст. Проспект мира
9 мин
4 этаж
Кабинетная
без мебели
с отделкой
Минская улица, 2Гк1
ст. Минская
5 этаж
Смешанная
без мебели
с отделкой
Офис, 107.7 м2
В особняке «Заморёнова улица, 5А»
Заморёнова улица, 5А
ст. Краснопресненская
5 мин
ст. Баррикадная
7 мин
1 этаж
Кабинетная
без мебели
с отделкой
Офис, 188 м2
В административном здании «Малый Предтеченский переулок, 1/2»
Малый Предтеченский переулок, 1/2
ст. Краснопресненская
10 мин
ст. Баррикадная
12 мин
ст. Улица 1905 года
12 мин
2 этаж
Кабинетная
без мебели
с отделкой
Ирина Трейвас
Управляющий партнёр












