- Главная
- Коммерческая элитная недвижимость
- Снять коммерческую недвижимость
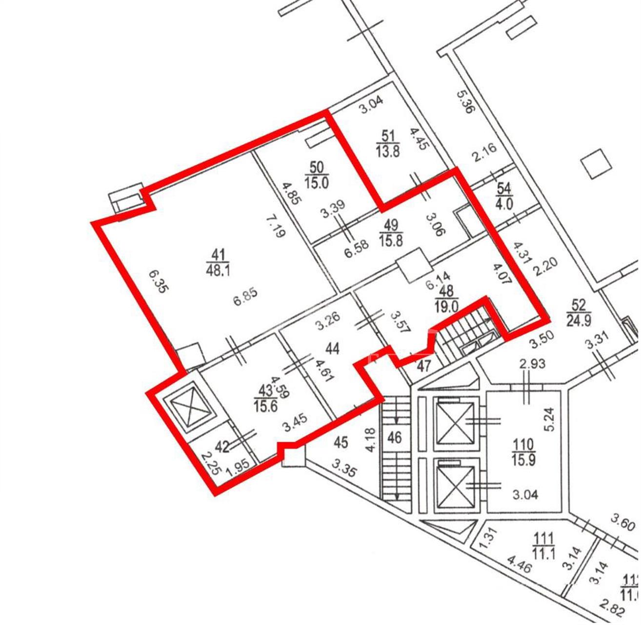
- ПСН, 601 м2 В бизнес центре «Линкор»
ID 82840
ПСН, 601 м2 В бизнес центре «Линкор»
Авиаконструктора Микояна улица, 12
Описание
Аренда помещения свободного назначения. Блок общей площадью 550,7 кв.м. делится на 1-й этаж - 419,9 кв.м. торговый зал и -1 этаж - 130,8 кв.м. организована зона разгрузки, индивидуальный грузовой лифт, подсобные помещения. Две отдельные входные группы с улицы. Высота потолка 4 метра. Панорамное остекление, возможность размещение вывески на фасаде. Открытая планировка, отделка за выездом арендатора. Площадь BOMA 601,08 кв.м. Бизнес Центр «Линкор» — это офисный комплекс класса «B+», расположенный в удобном доступе к ТТК, Ленинградскому Проспекту, Хорошевскому шоссе. Паркинг на наземной парковке 12 500 руб за 1 м/м.+НДС.
оставьте заявку
Скачать презентацию в pdf
Похожие предложения
Офис, 312 м2
В бизнес центре «Квадрат»
Верейская улица, 11
ст. Кунцевская ,
6 мин
7 мин
ст. Славянский бульвар ,
11 мин
ст. Давыдково
2 этаж
Open Space
без мебели
с отделкой
Офис, 1000 м2
В административном здании «Гиляровского 65с1»
Гиляровского улица, 65с1
ст. Рижская
7 мин
ст. Проспект мира
12 мин
1 этаж
Кабинетная
без мебели
с отделкой
loft
Офис, 751 м2
В административном здании «Гиляровского 65с1»
Гиляровского улица, 65с1
ст. Рижская
7 мин
ст. Проспект мира
12 мин
5 этаж
Кабинетная
без мебели
с отделкой
loft
Офис, 721 м2
В бизнес центре «Проектируемый 4062-й проезд, 6с25»
Проектируемый 4062-й проезд, 6с25
ст. Технопарк
3 мин
3 этаж
Смешанная
без мебели
с отделкой
Ирина Трейвас
Управляющий партнёр











