- Главная
- Коммерческая элитная недвижимость
- Снять коммерческую недвижимость
- Street Retail, 532.5 м2 В жилом доме «Мясницкая улица, 22с1»
ID 80929
Street Retail, 532.5 м2 В жилом доме «Мясницкая улица, 22с1»
Мясницкая улица, 22с1
Описание
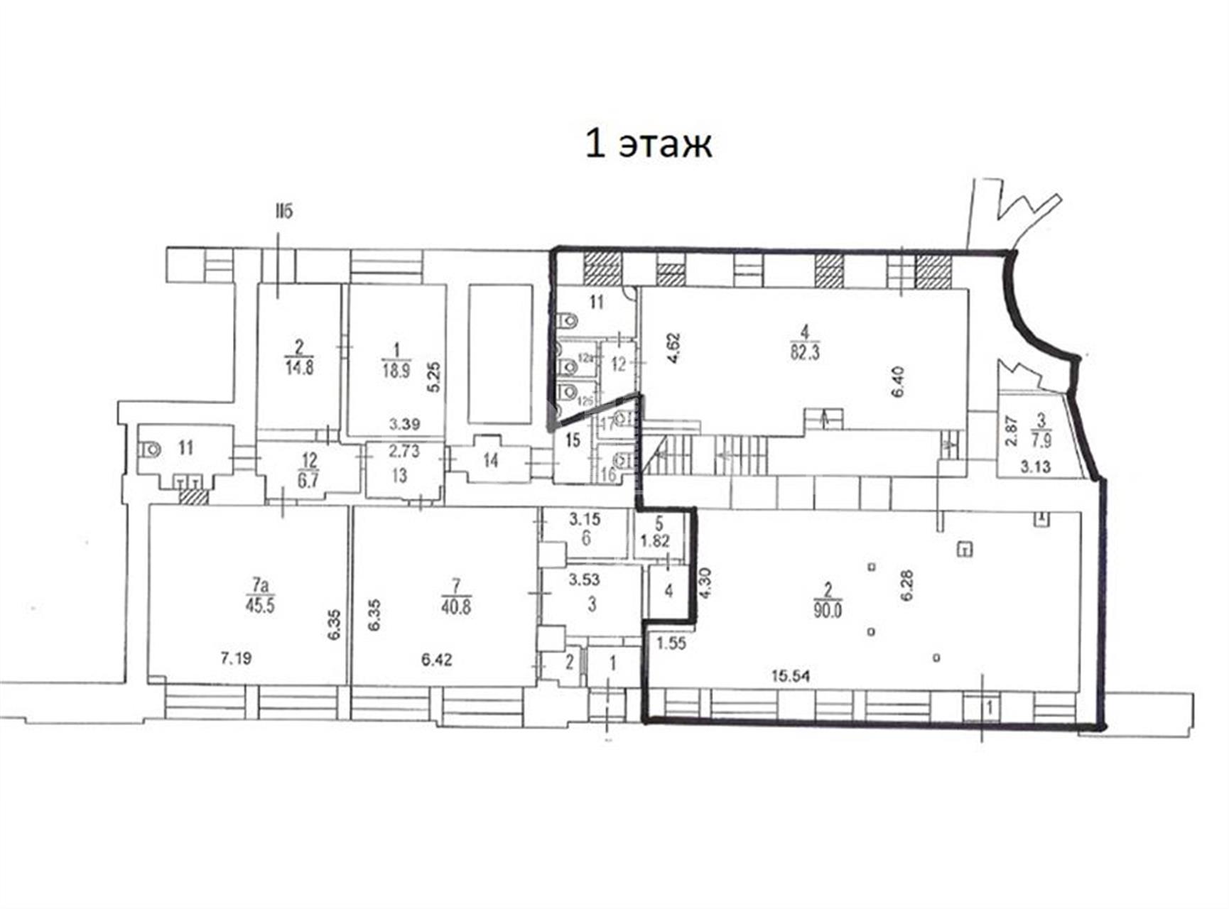
В аренду предлагается торговая площадь под организацию ресторана на одной из самых оживленных улиц Москвы - Мясницкая! Красивая фасадная часть блока с 5 большими витринными окнами и отдельным входом с улицы. На улице, перед помещением, устанавливается летняя веранда. Так же есть 2 технических входа со двора. Внутри выполнен дизайнерский современный ремонт в стиле loft. Общая площадь 533 кв.м. занимает 2 этажа, из них: 1-й этаж- 192,8 кв.м. и подвал - 339,7 кв.м. 1 этаж полностью посадочная зона для гостей и 3 с/у, в подвале расположена посадочная зона, 6 с/у, зона кухни полного цикла и подсобные помещения. Выделенная мощность – 127 кВт. В помещении установлена технологическая вытяжка через специальные фильтры Ятаган. В помещении проведены центральное отопление, вентиляция, кондиционирование. Высота потолков - 3.2 метра. На фасаде здания возможна установка вывески. Доступность до нескольких станций метро: "Тургеневская", "Сретенский бульвар", "Чистые пруды", "Лубянка".
оставьте заявку
Скачать презентацию в pdf
Похожие предложения
Офис, 698 м2
В бизнес центре «Квадрат»
Верейская улица, 11
ст. Кунцевская ,
6 мин
7 мин
ст. Славянский бульвар ,
11 мин
ст. Давыдково
5 этаж
Смешанная
без мебели
с отделкой
Офис, 1000 м2
В бизнес центре «Ferro Plaza»
Кржижановского улица, 14к3
ст. Профсоюзная
6 мин
ст. Новые Черемушки
15 мин
3 этаж
Смешанная
без мебели
с отделкой
Офис, 363 м2
В бизнес центре «Wall Street»
Валовая улица, 35
ст. Добрынинская
4 мин
ст. Павелецкая
10 мин
ст. Серпуховская
6 мин
7 этаж
Смешанная
без мебели
с отделкой
Офис, 386.36 м2
В бизнес центре «Садовая Галерея»
Малая Сухаревская площадь, 12
ст. Сухаревская
1 мин
4 этаж
Смешанная
без мебели
с отделкой
Ирина Трейвас
Управляющий партнёр




















