- Главная
- Коммерческая элитная недвижимость
- Снять коммерческую недвижимость
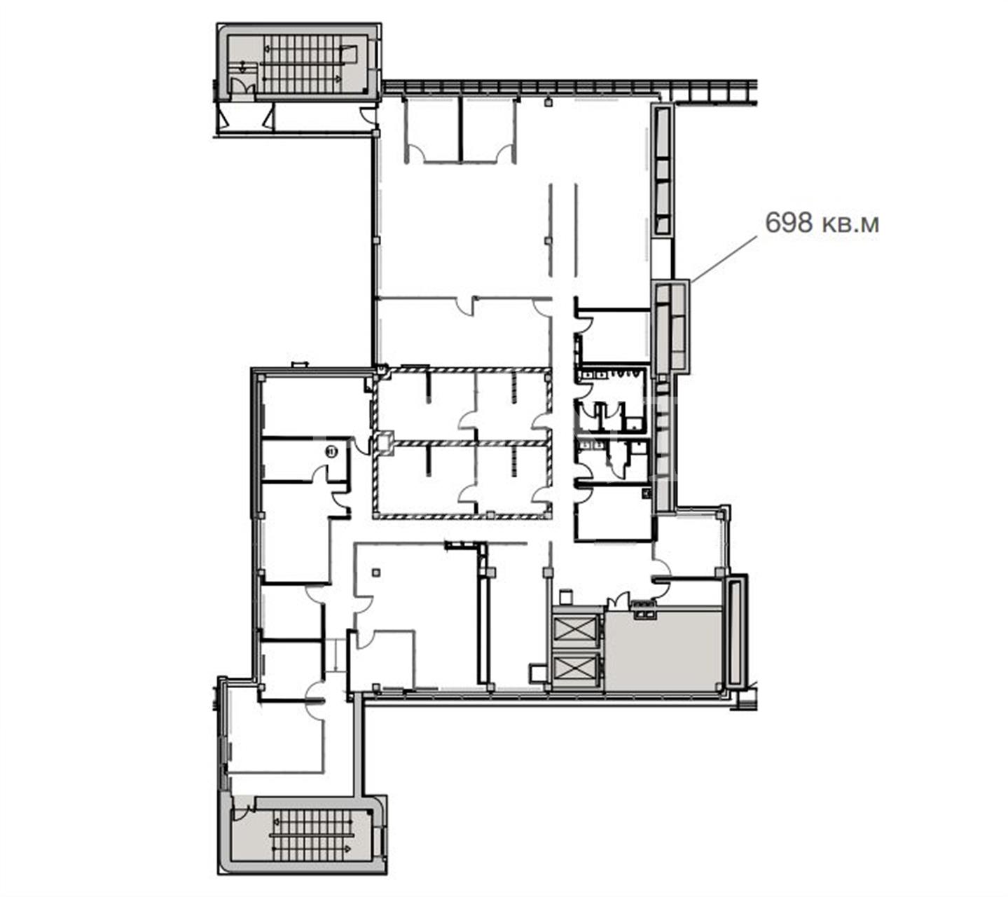
- Офис, 698 м2 В бизнес центре «Квадрат»
Описание
Предлагается в аренду офисный блок на 5 этаже. Общая площадь 698 кв.м. Планировка приоритетно кабинетная: зона ресепшн, кабинеты и переговорные комнаты, зона руководства, небольшой open-space, с/у и зона кухни. Офис сдается без мебели. По фасаду - витринное остекление, что обеспечивает большое количество дневного света. Готов к въезду с 1 октября 2026 г. Большой наземный паркинг. Коэффициент 1:70, оплачивается дополнительно. Бизнес-центр «Квадрат» предлагает комфорт арендаторам. Кроме непосредственно офисных помещений, в здании предусмотрена сопутствующая инфраструктура: кафе, минимаркет и корпоративная столовая. Метро Давыдково - до 10 минут пешком, удобно добираться до метро Славянский Бульвар - 7 минут на транспорте.
оставьте заявку
Скачать презентацию в pdf
Похожие предложения
Офис, 1000 м2
В бизнес центре «Ferro Plaza»
Кржижановского улица, 14к3
ст. Профсоюзная
6 мин
ст. Новые Черемушки
15 мин
3 этаж
Смешанная
без мебели
с отделкой
Офис, 363 м2
В бизнес центре «Wall Street»
Валовая улица, 35
ст. Добрынинская
4 мин
ст. Павелецкая
10 мин
ст. Серпуховская
6 мин
7 этаж
Смешанная
без мебели
с отделкой
Офис, 386.36 м2
В бизнес центре «Садовая Галерея»
Малая Сухаревская площадь, 12
ст. Сухаревская
1 мин
4 этаж
Смешанная
без мебели
с отделкой
Бутырская улица, 76с4
ст. Дмитровская
6 мин
Ирина Трейвас
Управляющий партнёр
















