- Главная
- Коммерческая элитная недвижимость
- Снять коммерческую недвижимость
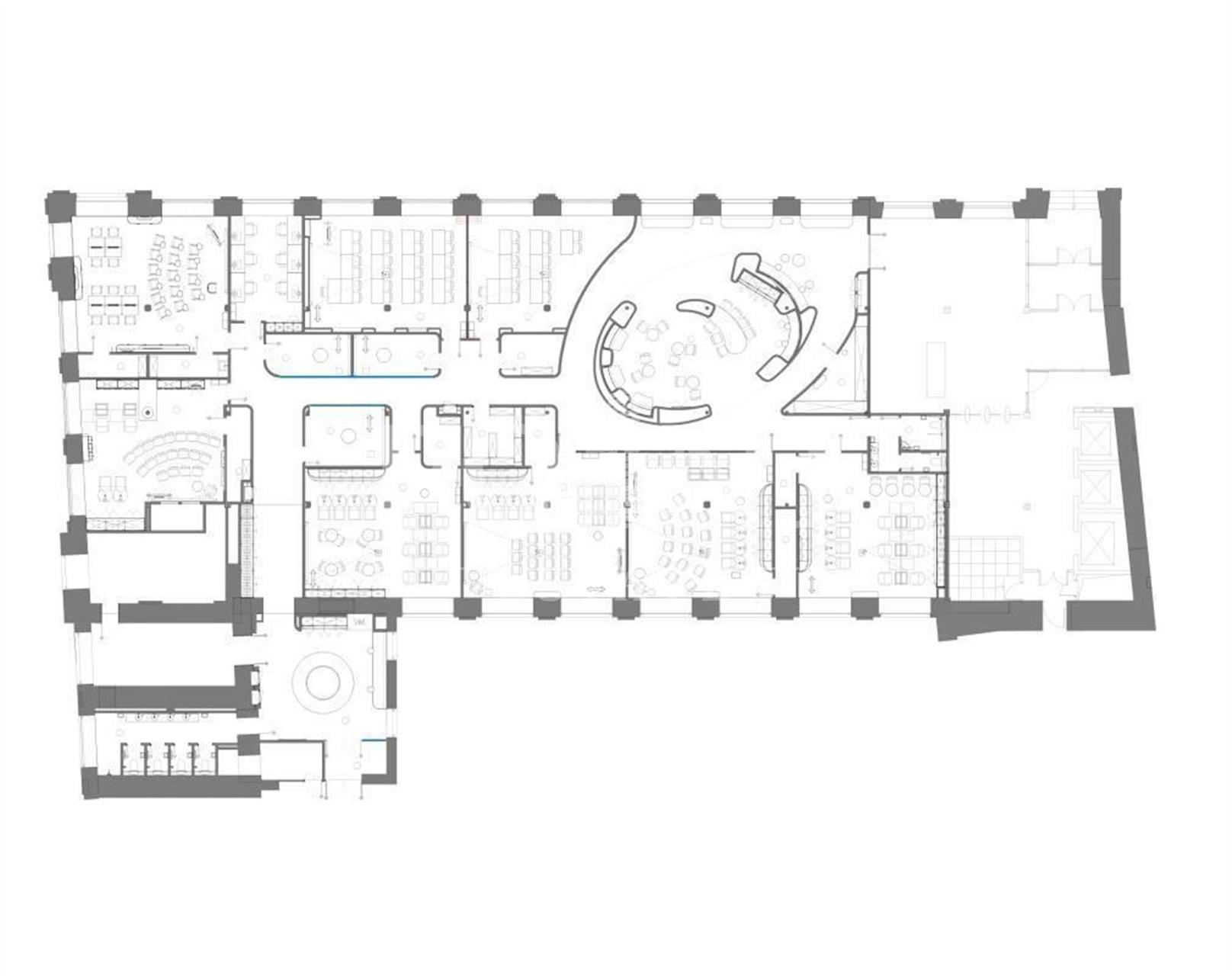
- Офис, 2216 м2 В бизнес центре «Голутвинская слобода (корпус 1-2)»
ID 115652
Офис, 2216 м2 В бизнес центре «Голутвинская слобода (корпус 1-2)»
4-й Голутвинский переулок, 1/8с1-2
Описание
Офисный блок с дизайнерской loft отделкой в бизнес-центре класса А "Голутвиснкая Слобода". Планировка смешанная: зона рецепции, гардеробная комната, видовой кабинет руководителя, переговорные комнаты, открытые рабочие пространства для сотрудников, кабинеты руководителей отделов, кухонная зона, серверная комната. Парковочный коэффициент 1:150. Бизнес-центр расположен в районе Якиманка Центрального административного округа (ЦАО) города Москвы. В пешей доступности станция метро «Полянка». Рядом пролегают улицы Большая полянка, Большая Якиманка, Якиманский проезд и одноименная набережная.
оставьте заявку
Скачать презентацию в pdf
Похожие предложения
Лобачевского улица, 27
ст. Мичуринский проспект ,
11 мин
13 мин
ст. Проспект Вернадского ,
7 мин
ст. Озерная
Смешанная
частично с мебелью
с отделкой
офис с террасой
Офис, 1392 м2
В бизнес центре «Симонов Плаза»
Ленинская Слобода улица, 26с5
ст. Автозаводская
10 мин
новое предложение
3 этаж
Смешанная
с мебелью
с отделкой
ПСН, 1176.6 м2
В бизнес центре «Кабинет Лаунж»
Малый Черкасский переулок, 2
ст. Лубянка
1 мин
ст. Кузнецкий мост
1 мин
1 этаж
Смешанная
без мебели
с отделкой
Чаплыгина улица, 11
ст. Чистые пруды
9 мин
ст. Красные ворота
9 мин
ст. Тургеневская
11 мин
ст. Сретенский бульвар
12 мин
Смешанная
с мебелью
с отделкой
Ирина Трейвас
Управляющий партнёр






















