- Главная
- Коммерческая элитная недвижимость
- Снять коммерческую недвижимость
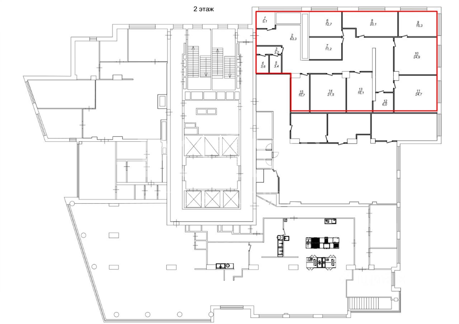
- Офис, 275.7 м2 В бизнес центре «Central Park Tower»
ID 115645
Офис, 275.7 м2 В бизнес центре «Central Park Tower»
Ленинский проспект, 15А
Описание
Дизайнерский офис на 2-м этаже представительского делового центра "Central Park Tower". Площадь офиса 275,7 кв.м., кабинетная планировка. Офис обустроен мебелью. По фасаду панорамные окна. Проведены все инженерные коммуникации: приточно-вытяжная вентиляция и центральное кондиционирование. Несколько провайдеров: Билайн, МТС, Orange Business, NetOne, Авантел. На подземной парковке на офис выделено 1 м/м - оплачивается дополнительно. В здании - столовая, ресторан, кофе-поинт, магазин, конференц-зал. Качественный ремонт внутри Бизнес-Центра - входная группа, лифтовые зоны, и паркинг с собственным дизайном. Возможность работать 24/7. Удобная локация - БЦ расположен на Ленинском проспекте. 5 минут пешком от м. Шаболовская - через зеленый сквер. 13 минут пешком от Кольцевой.
оставьте заявку
Скачать презентацию в pdf
Похожие предложения
Офис, 538.04 м2
В бизнес центре «Красный Пролетарий»
Краснопролетарская улица, 16с1
ст. Новослободская
9 мин
ст. Достоевская
10 мин
новое предложение
3 этаж
Смешанная
частично с мебелью
с отделкой
Офис, 615 м2
В бизнес центре «Ferro Plaza»
Кржижановского улица, 14к3
ст. Профсоюзная
6 мин
ст. Новые Черемушки
15 мин
5 этаж
Смешанная
без мебели
с отделкой
Офис, 295 м2
В бизнес центре «Wall Street»
Валовая улица, 35
ст. Добрынинская
4 мин
ст. Павелецкая
10 мин
ст. Серпуховская
6 мин
8 этаж
Смешанная
без мебели
с отделкой
Офис, 363 м2
В бизнес центре «Wall Street»
Валовая улица, 35
ст. Добрынинская
4 мин
ст. Павелецкая
10 мин
ст. Серпуховская
6 мин
7 этаж
Смешанная
без мебели
с отделкой
Ирина Трейвас
Управляющий партнёр






















