- Главная
- Коммерческая элитная недвижимость
- Снять коммерческую недвижимость
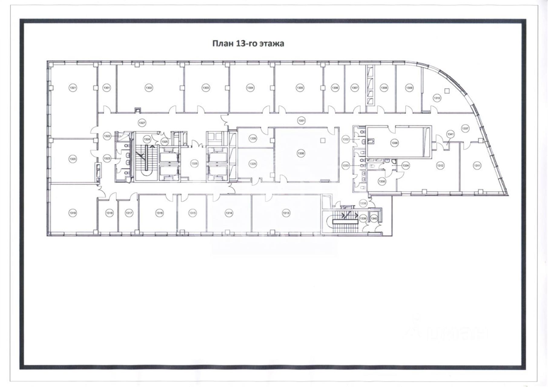
- Офис, 1032.7 м2 В бизнес центре «Ямское плаза»
ID 111123
Офис, 1032.7 м2 В бизнес центре «Ямское плаза»
5-я Ямского Поля улица, 5с1
Описание
В аренду предлагается целиком 13 этаж площадью 1033 кв.м в современном бизнес-центре класса В+. Готовая офисная отделка, приоритетно кабинетная планировка. Высота потолков - 3,2 метра. Помещение оборудовано центральной системой кондиционирования, приточно-вытяжной вентиляцией, спринклерной системой пожаротушения. Здание оборудовано 4-мя современными грузопассажирскими лифтами, один из которых идет из подземного паркинга. Обширная двухуровневая подземная парковка на 60 м/м. В непосредственной близости от бизнес-центра - наземная охраняемая парковка на 40 м/м. (оплата отдельно). Расположение объекта в САО Москвы имеет определяющее значение, ближайшая станция метро Белорусская, в районе прохождения главных магистралей столицы: Тверская улица, Ленинградский и Кутузовский проспекты, Дмитровское шоссе. Садовое и Третье транспортное кольцо обеспечивают хорошую транспортную доступность к деловым кварталам Москвы, аэропортам "Шереметьево 1 и 2", вокзалам.
оставьте заявку
Скачать презентацию в pdf
Похожие предложения
Офис, 538.04 м2
В бизнес центре «Красный Пролетарий»
Краснопролетарская улица, 16с1
ст. Новослободская
9 мин
ст. Достоевская
10 мин
новое предложение
3 этаж
Смешанная
частично с мебелью
с отделкой
Офис, 615 м2
В бизнес центре «Ferro Plaza»
Кржижановского улица, 14к3
ст. Профсоюзная
6 мин
ст. Новые Черемушки
15 мин
5 этаж
Смешанная
без мебели
с отделкой
Офис, 295 м2
В бизнес центре «Wall Street»
Валовая улица, 35
ст. Добрынинская
4 мин
ст. Павелецкая
10 мин
ст. Серпуховская
6 мин
8 этаж
Смешанная
без мебели
с отделкой
Офис, 363 м2
В бизнес центре «Wall Street»
Валовая улица, 35
ст. Добрынинская
4 мин
ст. Павелецкая
10 мин
ст. Серпуховская
6 мин
7 этаж
Смешанная
без мебели
с отделкой
Ирина Трейвас
Управляющий партнёр












