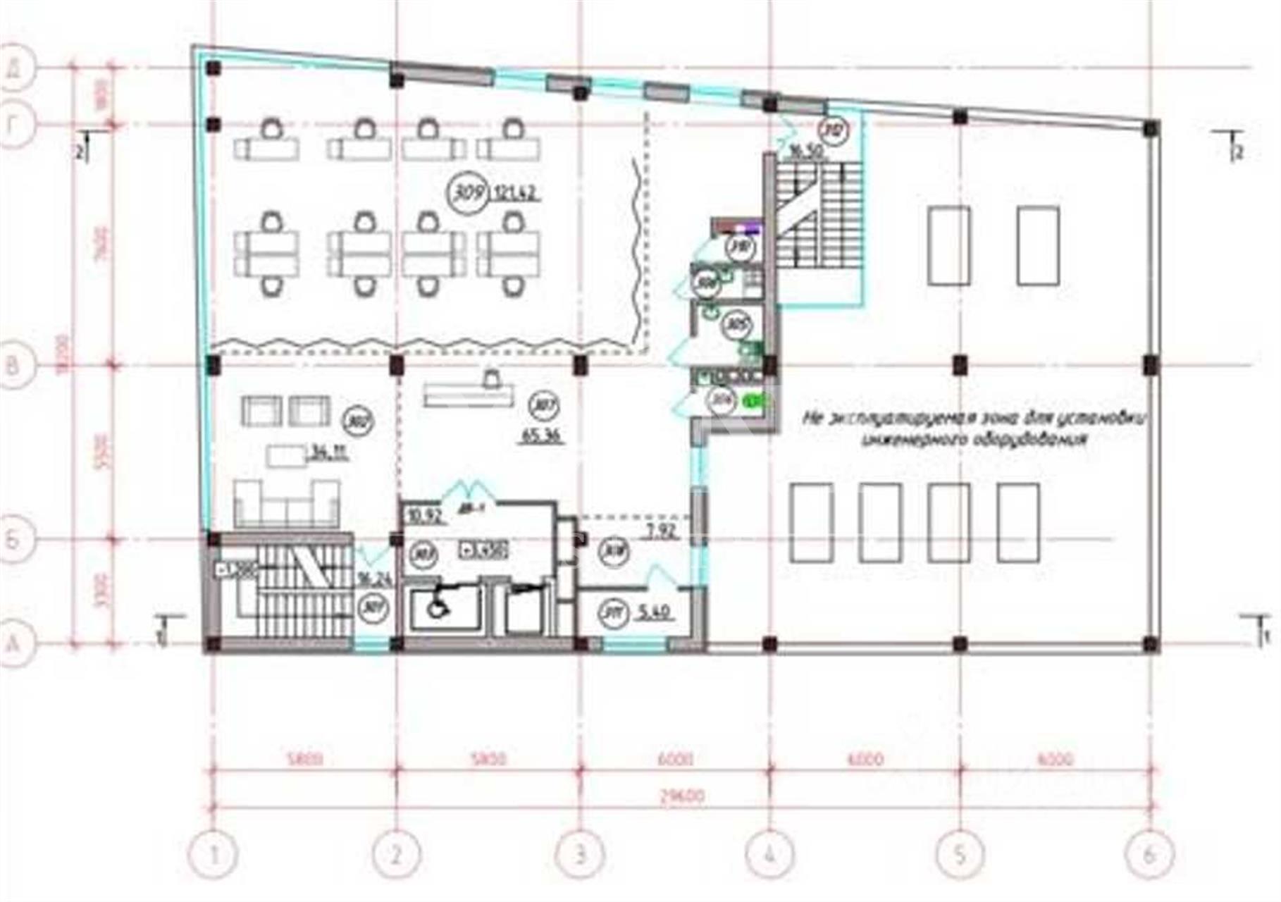
Административное здание в районе Дорогомилово общей площадью 2650 кв.м. Всего в здании 5 наземных этажей, и 2 подземных - парковка. Организовано несколько входных зон, планировка этажей - приоритетно открытая, состояние отделки - shell&core. Высокие потолки 3,5 метра. На каждом этаже имеется стояк, здание оборудовано лифтом. Здание строили по самым передовым технологиям из высококачественных материалов и оснастили современными инженерными системами. Здание обеспечено мощностью до 250 кВт с возможностью увеличен. По фасаду здания идет панорамное остекление, есть выходы на эксплуатируемую крышу на последнем этаже. Подземный паркинг вмещает в себя 8 машин, а также есть еще около 6 машино-мест на наземной парковки около здания. Ввод в эксплуатацию объекта - февраль 2024 г. Земельный участок площадью около 700 кв.м. оформлен в долгосрочную аренду на 49 лет у города. Идеально подойдет под клинику или медицинский центр, а также возможно использовать под представительский офис.
оставьте заявку
Похожие предложения
В бизнес центре «Квадрат»
В МФК «Монарх»
В бизнес центре «Кабинет Лаунж»
Ирина Трейвас
Управляющий партнёр








