- Главная
- Коммерческая элитная недвижимость
- Снять коммерческую недвижимость
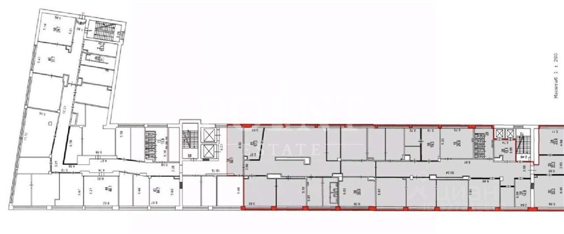
- Офис, 1047 м2 В бизнес центре «Avion»
ID 102688
Офис, 1047 м2 В бизнес центре «Avion»
ст. Сокол
Ленинградский проспект, 47к2
Описание
В аренду предлагается офисное помещение в бизнес-центре "Авион". Общая площадь 1047 кв.м. на 6-м этаже. Готов к въезду с июля 2026 года. Смешанная планировка: open-space, кабинеты, переговорные, кухонные зоны и с/у в рамках блока. Есть выделенная VIP зона руководства. Помещение оборудовано приточно-вытяжной вентиляцией и системой центрального кондиционирования. Парковка: гостевая, наземный паркинг, аренда 20 000 руб/мес. Инфраструктура: банк, ресторан, кафе, салон красоты, фитнес-центр, салон связи. Хорошая транспортная доступность: наличие поблизости ключевых городских магистралей: ТТК - 2,5 км. Очень удобно добираться от метро до здания, всего несколько минут пешком!
Avion
Узнайте больше О бизнес-центре
Посмотрите информацию об инфраструктуре, истории и других объектах недвижимости.
ПодробнееРасположение
Ленинградский проспект, 47к2
оставьте заявку
Скачать презентацию в pdf
Похожие предложения
ПСН, 506.13 м2
В жилом доме «Усачёва улица, 15»
Усачёва улица, 15
ст. Фрунзенская
7 мин
2 этаж
Open Space
без мебели
без отделки
офис с террасой
Ольховская улица, 45с3
ст. Красносельская
9 мин
ст. Бауманская
10 мин
ст. Комсомольская
15 мин
Смешанная
без мебели
с отделкой
loft
Офис, 823.5 м2
В бизнес центре «Садовая Галерея»
Малая Сухаревская площадь, 12
ст. Сухаревская
1 мин
1 этаж
Смешанная
без мебели
с отделкой
Офис, 865.6 м2
В бизнес центре «Кунцево Плаза»
Ярцевская улица, 19
ст. Молодежная
7 мин
7 этаж
Смешанная
без мебели
с отделкой
офис с террасой
Ирина Трейвас
Управляющий партнёр

















