- Главная
- Коммерческая элитная недвижимость
- Снять коммерческую недвижимость
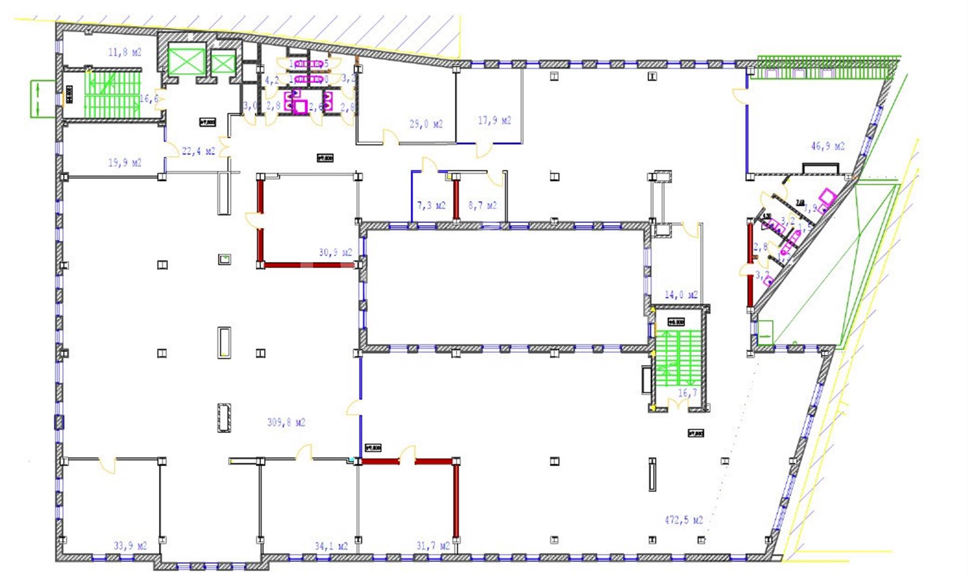
- Офис, 1167 м2 В бизнес центре «Щипок улица, 5/7с2»
Описание
Предлагается в аренду офисное помещение 1167 кв.м. на 3-м этаже современного Бизнес-центра класса B+. Внутри блока выполнена качественная отделка, высота потолков 3,5 метра. Смешанная планировка офиса - зона ресепшн, открытые пространства, кабинеты и переговорные комнаты, кухня, с\у. Бизнес-центр "Щипок 5" находится в нескольких минут от метро "Серпуховская" (не более 4 минут пешком), поэтому в непосредственной близости от него имеется вся необходимая инфраструктура (банки, магазины, кафе и т.д.). Особняк привлекателен своей транспортной доступностью, подъехать к нему можно по таким магистралям, как Садовое Кольцо. Бизнес-центр имеет техническую возможность установки климатического оборудования в офисных помещениях. Предусмотрена подземная охраняемая автостоянка.
оставьте заявку
Скачать презентацию в pdf
Похожие предложения
Офис, 698 м2
В бизнес центре «Квадрат»
Верейская улица, 11
ст. Кунцевская ,
6 мин
7 мин
ст. Славянский бульвар ,
11 мин
ст. Давыдково
5 этаж
Смешанная
без мебели
с отделкой
Офис, 1000 м2
В бизнес центре «Ferro Plaza»
Кржижановского улица, 14к3
ст. Профсоюзная
6 мин
ст. Новые Черемушки
15 мин
3 этаж
Смешанная
без мебели
с отделкой
Офис, 386.36 м2
В бизнес центре «Садовая Галерея»
Малая Сухаревская площадь, 12
ст. Сухаревская
1 мин
4 этаж
Смешанная
без мебели
с отделкой
Мосфильмовская улица, 8
ст. Киевская ,
9 мин
ст. Минская ,
10 мин
ст. Ломоносовский проспект ,
9 мин
ст. Парк победы ,
15 мин
новое предложение
3 этаж
Смешанная
с мебелью
с отделкой
Ирина Трейвас
Управляющий партнёр



















