- Главная
- Коммерческая элитная недвижимость
- Купить коммерческую недвижимость
- Офис, 451 м2 В бизнес центре «Новоданиловский Дом»
ID 94113
Офис, 451 м2 В бизнес центре «Новоданиловский Дом»
Новоданиловская набережная, 4а
Описание
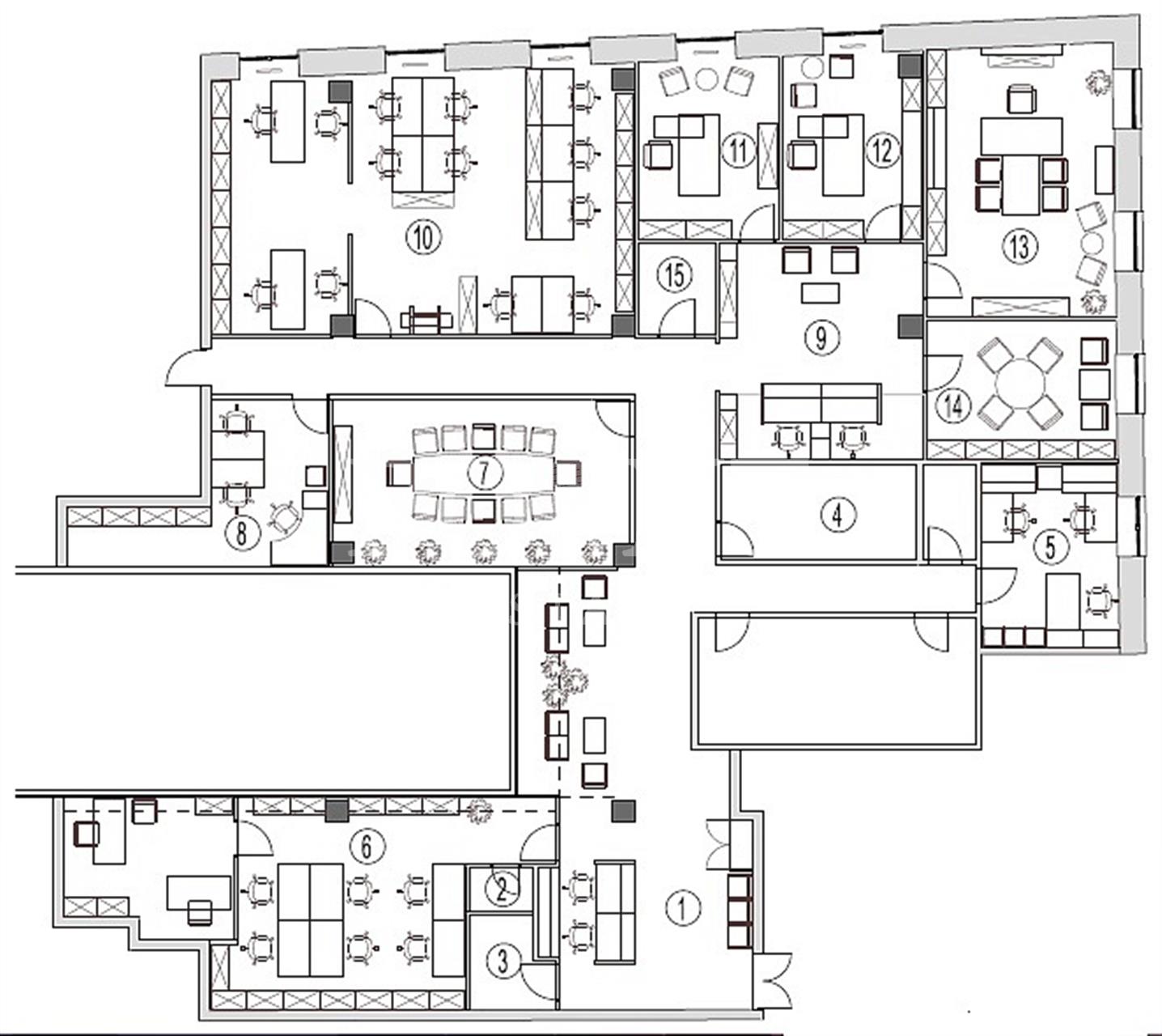
В продажу предлагается офис площадью 421,8 кв.м. на 5 этаже бизнес-центра "Новоданиловский Дом". Планировка: зона ресепшн, гардеробная, VIP- зона для руководства, переговорная, мини-кухня с мокрой точкой, кабинеты для сотрудников, серверная, небольшая кладовка (архив), с/у. Вид на реку. Качественная офисная отделка. В здании центральная приточно-вытяжная вентиляция и кондиционирование. Круглосуточная система охраны. Реконструкция бизнес-центра была проведена в 2005 г. На прилегающей территории организован наземный паркинг, в т.ч. гостевой. Пешая доступность от станции метро "Тульская" - 10-12 минут.
оставьте заявку
Скачать презентацию в pdf
Похожие предложения
Складочная улица, 6с36
ст. Савеловская
Офис, 339.74 м2
В бизнес центре «Upside Останкино»
Огородный проезд, 20
ст. Фонвизинская
5 мин
ст. Бутырская
6 мин
10 этаж
Open Space
без мебели
без отделки
Проектируемый 4062-й проезд, 6с2
ст. Технопарк
5 мин
ст. ЗИЛ
11 мин
ст. Автозаводская
17 мин
новое предложение
3 этаж
Смешанная
частично с мебелью
с отделкой
Проектируемый 4062-й проезд, 6с2
ст. Технопарк
5 мин
ст. ЗИЛ
11 мин
ст. Автозаводская
17 мин
новое предложение
4 этаж
Смешанная
частично с мебелью
с отделкой
Ирина Трейвас
Управляющий партнёр


















