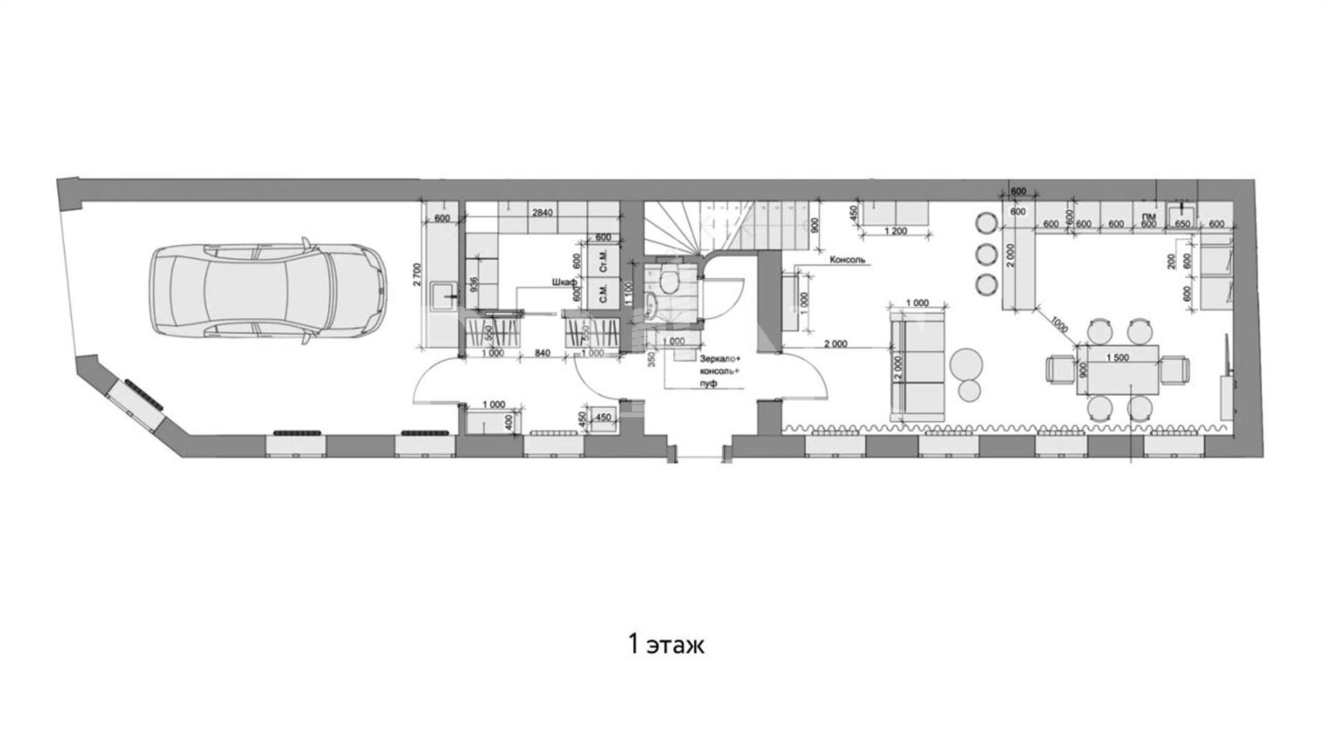
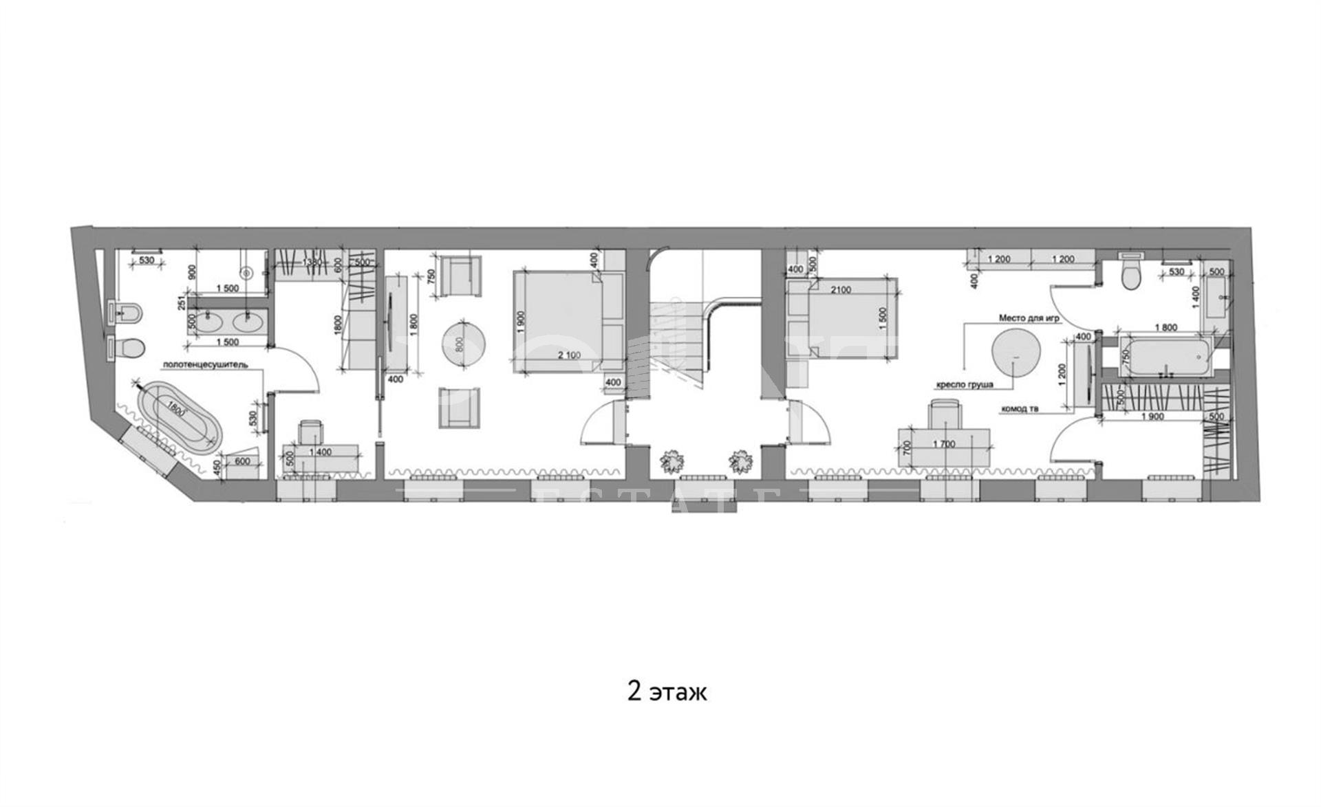
Двухэтажный особняк под офисно-жилую резиденцию с гаражом в Басманном районе. Современное здание 2024 года постройки, фасад облицован светло-бежевой мрамором, стены кирпич 80 см, утеплитель 10 см. Отделка выполнялась по дизайн проекту студии "SoulDesign" с использованием высококачественных материалов и новейших технологий, обеспечивающих комфорт и долговечность. Вид из окон на внутренний двор. Встроенный гараж, ворота и автоматика Hoermann, Германия. Высота потолков: 1 этаж - 3 метра, 2 этаж - переменной высотности от 3 до 4,5 метров. Две просторные мастер-спальни. Интерьер кухни-гостиной оформлен в современном стиле с использованием мягких акцентов и премиальной мебели. Открытая планировка создаёт просторное и уютное пространство для семейных вечеров и встреч с друзьями. Большие окна дают много естественного света. Доступ в дом по отпечатку пальца. Входная дверь - корабельный шпон дуб, производитель "Бастион". Мебель Estetica. Кухня, гардеробные - индивидуальное производство г. Москва. Напольное покрытие первого этажа и лестницы - керамогранит, второй этаж - массивная доска дуб. Двери - шпон. Окна - деревянные рамы из лиственницы с трехкамерными стеклопакетами, подоконники - мрамор. Электрическая мощность 75 кВт. Отопление / ГВС - электрический котел с бойлером на 500 литров. Автоматически регулируемая температура в каждом помещении, радиаторы Arbonis, подогреваемые плинтуса, ЭКО камин, вентиляция с кондиционированием. Подогреваемая ливневка - желоба и трубы. Бесшовный интернет по оптоволокну от МТС, видеонаблюдение. З/у 148 соток в долгосрочной аренде до 2072 года. Особняк надежно скрыт от шума города на тихой улице в окружении красивых храмов, церквей и соборов. Рядом находятся парк Зарядье, Арт-квартал Хохловка, особняк Морозовых и дом Остермана Кувшинниковых. Удобный выезд на улицу Маросейка, Бульварное и Садовое кольца. До станции метро «Китай-город» 7 минут пешком, за 12 минут можно дойти до станции «Лубянка».
оставьте заявку
Похожие предложения
В МФК «Дом Правды»
В бизнес центре «стр.1 Lucky»
Ирина Трейвас
Управляющий партнёр











