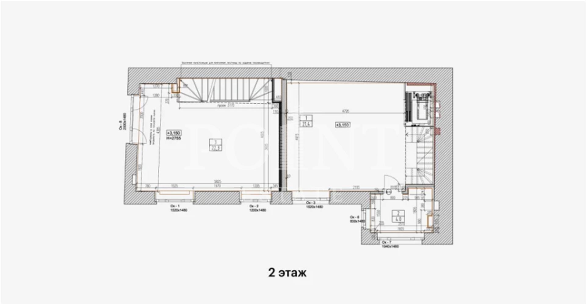
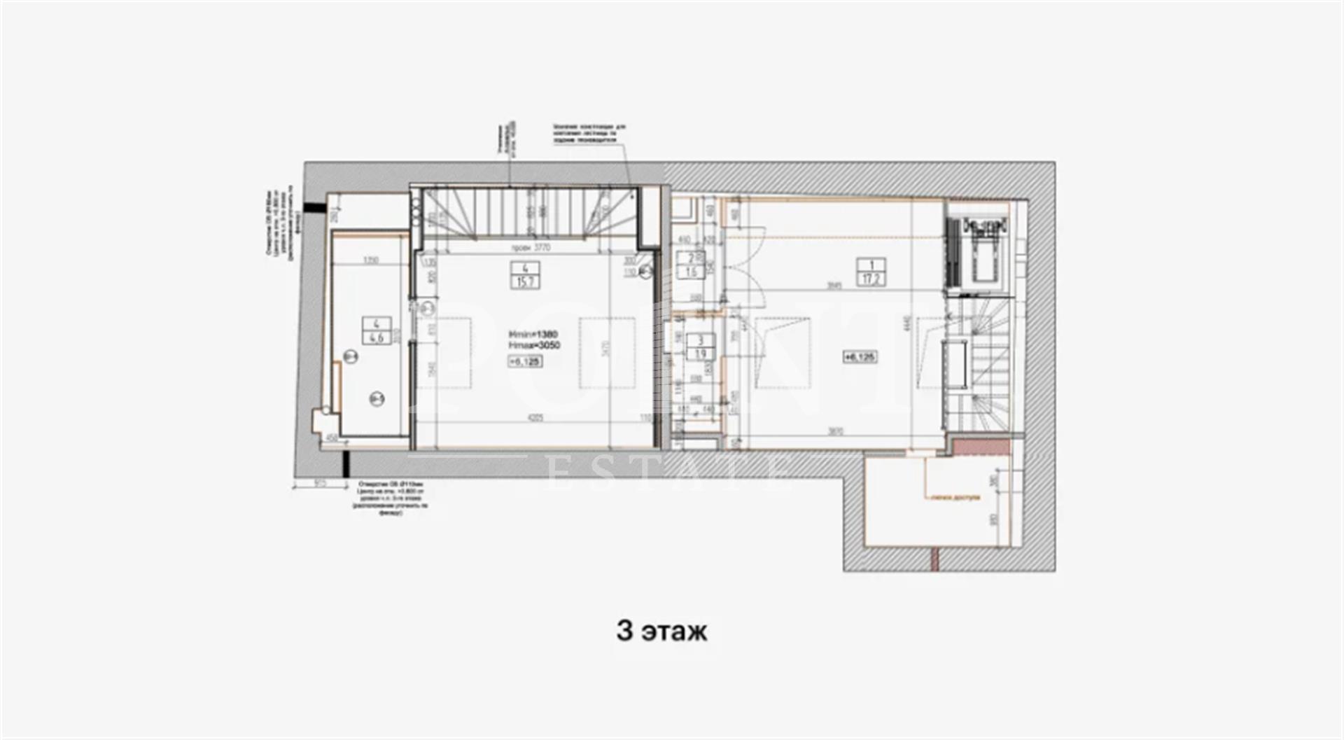
Трёхэтажный особняк с подвалом в Романовом переулке в районе Арбат. Исторический особняк построен в 1899 году, была проведена полная реконструкция здания в 2015 году с заменой межэтажных перекрытий на железобетонные. Отделка фасада выполнена штукатуркой бежевого цвета, украшением служат русты, карнизы и оконные кронштейны лилового оттенка. Особняк разделен на 2 таунхауса с отделкой и мебелью, в каждом свой отдельный вход. В таунхаусе площадью 76 м? организованы винный погреб, гостиная с санузлом, кухня-столовая и на последнем этаже — спальня с ванной комнатой. В таунхаусе площадью 81 м? спланированы постирочная с гардеробом, кухня-столовая, спальня с ванной комнатой и кабинет, для удобства установлен лифт. У входа 2 машиноместа, въезд осуществляется через шлагбаум. Особняк подойдёт для жизни или резиденции. Особняк расположен на закрытой территории жилого комплекса «Романов, 3» и усадьбой Шереметева. Проезд возможен со стороны Романова переулка. Развитая инфраструктура — рядом поликлиника, продуктовые магазины, большой выбор кафе и ресторанов, разнообразие музеев. В пешей доступности находятся Государственная библиотека имени Ленина, Александровский сад и Кремль. До ближайшей остановки общественного транспорта и станции метро «Арбатская» идти 5 минут. Через улицу Новый Арбат можно за 8 минут доехать до ТТК.
Узнайте больше О бизнес-центре
Посмотрите информацию об инфраструктуре, истории и других объектах недвижимости.
Подробнееоставьте заявку
Похожие предложения
В бизнес центре «стр.1 Lucky»
В жилом доме «Лобачевского»
В жилом доме «Шуваловский»
Ирина Трейвас
Управляющий партнёр















