- Главная
- Коммерческая элитная недвижимость
- Купить коммерческую недвижимость
- Особняк, 2608.6 м2
Описание
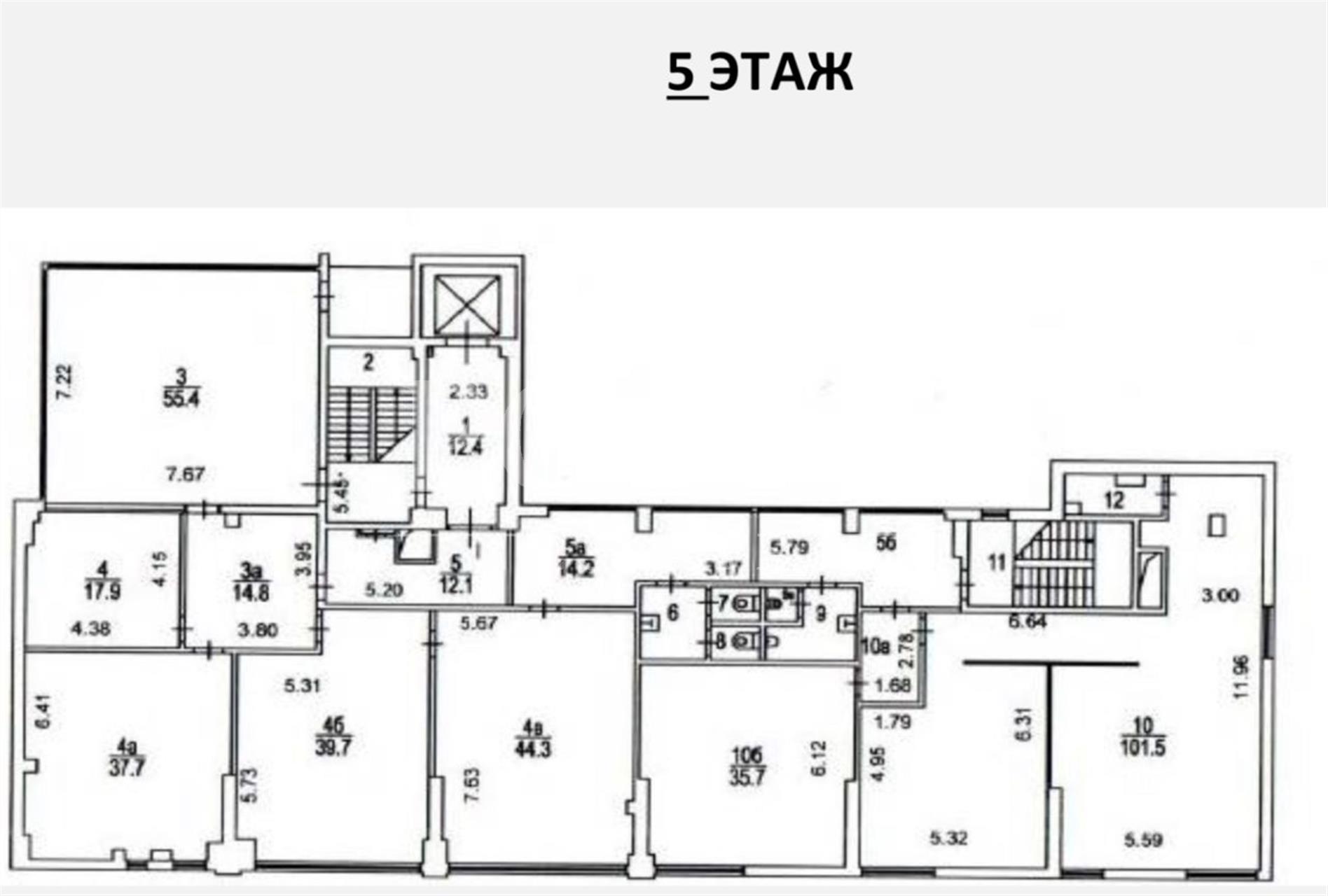
Представительский особняк на первой линии с дорогой, качественной отделкой! Общая площадь здания 2 608,6 кв.м., из них: подвал #1 - 309,9 кв.м., подвал #2 - 340,1 кв.м., 1-ый этаж - 313,4 кв.м., 2-ой этаж - 338,5 кв.м., 3-ий этаж- 436,7 кв.м., 4-ый этаж - 425,0 кв.м., 5-ый этаж - 445,0 кв.м. Рассадка на 200+ сотрудников. В 2022 году был произведен ремонт внутренних помещений. В здание организовано несколько входных групп - центральный вход с улицы и 2 эвакуационных выхода со двора. Смешанная планировка офисного пространства, имеется зона руководства с панорамным атриумом. Кабинеты частично меблированы качественной и функциональной мебелью. Высота потолков варьируется от 2,8 до 3,5 метров. Здание оборудовано пассажирским лифтом и грузовой платформой грузоподъемностью 2,1 тонны. Мощность на объекте - 292 кВт. Интернет провайдер - Ростелеком. Подземная парковка рассчитана на 14 м/м. Здание располагается в пешей доступности от станции метро "Сухаревская" - 5 минут , "Сретенский бульвар" - 7 минут, "Трубная" - 8 минут. Удобные выезды на Садовое кольцо и ТТК, доступность до кремля - 10 минут на автомобиле.
оставьте заявку
Скачать презентацию в pdf
Похожие предложения
Долгоруковская улица, 21с1
ст. Новослободская
12 мин
ст. Менделеевская
15 мин
ПСН, 1586.8 м2
В жилом доме «Sydney City»
Шеногина улица, вл.2
ст. Шелепиха
15 мин
новое предложение
1 этаж
Open Space
без мебели
без отделки
Большой Лёвшинский переулок, 6с1
ст. Смоленская
10 мин
ст. Кропоткинская
15 мин
в пределах садового кольца
Складочная улица, 6с36
ст. Савеловская
7 мин
Ирина Трейвас
Управляющий партнёр





























