- Главная
- Коммерческая элитная недвижимость
- Купить коммерческую недвижимость
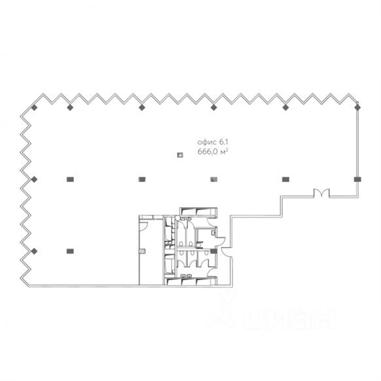
- Офис, 666 м2 В бизнес центре «Lunar (Лунар)»
Описание
Продается офис в новом бизнес-центре класса А в составе проекта LUNAR, который будет расположен всего в 10-ми минутах пешком от метро Ленинский проспект/МЦК Площадь Гагарина, и 5-ти минутах от ТТК. Бизнес-центр представляет собой отдельный офисный модуль (MODULE B) с независимой сервисной логистикой, выполнен в виде отдельного 6-ти этажного здания общей наземной площадью 13 400 м2. Завершение строительства 4 кв. 2023 г. Основные преимущества и характеристики проекта: всего 54 офисных лота с функциональными планировками и площадью от 88 кв. м. Концептуальный дизайн фасада и общественных пространств от архитектурного бюро "Цимайло Ляшенко и Партнеры". Современное инженерно-техническое оснащение. Высокие потолки 3,5 метра, шаг колонн: 8,4*8,4. Подземный паркинг с коэффициентом обеспеченности выше рыночного. Отделка Shell&Core. Благоустроенная территория. Инфраструктура комплекса будет представлена операторами товаров и услуг, которые будут размещены на первых этажах всех модулей комплекса, среди которых: фудхолл, гастропаб, столовая, кафе и рестораны, салоны красоты, магазины, аптеки, банкоматы. Все это создает идеальную среду для ведения бизнеса, встреч с партнерами и клиентами.
оставьте заявку
Скачать презентацию в pdf
Похожие предложения
ПСН, 351 м2
В административном здании «Дмитровка Б. улица, 11»
Дмитровка Б. улица, 11
ст. Театральная
5 мин
ст. Кузнецкий мост
11 мин
1 этаж
Смешанная
частично с мебелью
с отделкой
в пределах садового кольца
Остоженка улица, 10
ст. Кропоткинская
5 мин
ст. Парк культуры
13 мин
1 этаж
Open Space
с мебелью
с отделкой
в пределах садового кольца
г. Химки, ул. Молодежная
ст. Планерная ,
8 мин
ст. Сходненская ,
8 мин
новое предложение
1 этаж
Смешанная
частично с мебелью
с отделкой
ПСН, 193.7 м2
В бизнес центре «стр.1 Lucky»
2-я Звенигородская улица, 12с1
ст. Улица 1905 года
5 мин
1 этаж
Open Space
без мебели
под чистовую отделку
Ирина Трейвас
Управляющий партнёр




