- Главная
- Коммерческая элитная недвижимость
- Купить коммерческую недвижимость
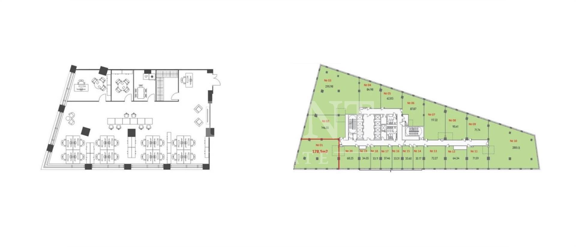
- Офис, 178.5 м2 В МФК «Botanica»
Описание
В продажу предлагается офис в современном бизнес-центре класса А, расположенный около станции метро "Ботанический сад". Общая площадь офиса - 178 кв.м., располагается на 11 этаже и имеет видовые характеристики на Москву. Открытая планировка, витринное остекление по фасаду. помещение предлагается без отделки, высота потолков - 3,4 метра, выделенная мощность - 70 ВВат/м2. Для автомобилистов предусмотрен подземный паркинг на 246 автомобилей и бесплатная наземная парковка на 100 мест. На первых трех этажах здания разместится Торговый молл Botanica с магазинами, бутиками, банками, аптеками, кафе, ресторанами, фитнес-клубами и салонами красоты. Бизнес-центр "Botanica" располагается недалеко от ВДНХ и Проспект мира. Комфортную транспортную доступность обеспечивает близость метро и станции МЦК Ботанический сад (менее 100 м), для автомобилистов - 9 км от Садового кольца, 6 км от ТТК. Пройти в бизнес-центр, не выходя на улицу, будет возможно по крытому пешеходному переходу из метро и МЦК "Ботанический сад".
оставьте заявку
Скачать презентацию в pdf
Похожие предложения
Мясницкая улица, 43с2
ст. Чистые пруды
5 мин
ст. Сретенский бульвар
5 мин
ст. Тургеневская
5 мин
ст. Лубянка
7 мин
4 этаж
Open Space
без мебели
с отделкой
в пределах садового кольца
офис с террасой
1 этаж
Смешанная
без мебели
с отделкой
Мясницкая улица, 43с2
ст. Чистые пруды
5 мин
ст. Сретенский бульвар
5 мин
ст. Тургеневская
5 мин
ст. Лубянка
7 мин
новое предложение
1 этаж
Смешанная
с мебелью
с отделкой
в пределах садового кольца
Офис, 12331 м2
В бизнес центре «Ходынская улица, 2с9»
Ходынская улица, 2с9
ст. Улица 1905 года
7 мин
1 этаж
Open Space
без мебели
без отделки
Ирина Трейвас
Управляющий партнёр








