- Главная
- Коммерческая элитная недвижимость
- Купить коммерческую недвижимость
- Особняк, 1214.3 м2
Описание
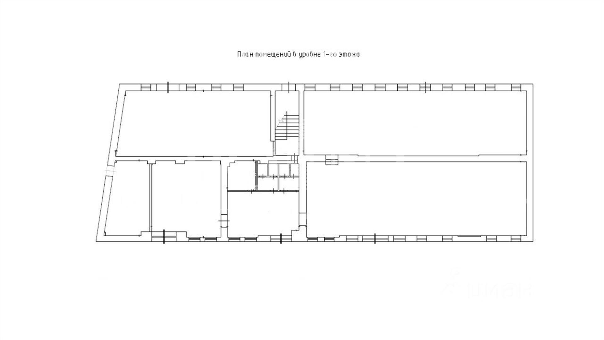
Отдельно стоящее здание в Восточном районе с высокими потолками. Здание 1917 года постройки, в 2022 году был проведен капитальный ремонт здания с заменой всех инженерных коммуникаций. Здание имеет 4 отдельные входные группы. Всего в здании 3 этажа, подвала - нет. Внутри сделан ремонт в стиле LOFT. Высота потолков от 3 до 8 метров. Первый этаж имеет смешанную планировку, 2 этаж - открытую. Выделенная мощность - 149 кВт. На данный момент здание занимают Арендаторы: студия воздушной акробатики, компания по продаже детской одежды на маркетплейсах (Вайлдберриз, ОЗОН), суммарная арендуемая площадь - 771,8 кв.м. Суммарный МАП составляет 881 013 рублей, договоры аренды - краткосрочные. Земельный участок площадью 9 909 кв.м. оформлен в долгосрочную аренду до 06.12.2061 г. ВРИ: земельные участки предназначенные для размещения производственных и административных зданий. На территории имеется огромный наземный паркинг на 50 машин.
оставьте заявку
Скачать презентацию в pdf
Похожие предложения
2-й Колобовский переулок, 9/2с3
ст. Цветной бульвар
7 мин
ст. Трубная
7 мин
ПСН, 444 м2
В бизнес центре «стр.1 Lucky»
2-я Звенигородская улица, 12с1
ст. Улица 1905 года
5 мин
1 этаж
Open Space
без мебели
идет отделка под ключ
ПСН, 611.6 м2
В жилом доме «Лобачевского»
Лобачевского улица, 118к4
ст. Аминьевская
8 мин
1 этаж
Кабинетная
без мебели
с отделкой
ПСН, 332.3 м2
В жилом доме «Шуваловский»
Мичуринский проспект, 3
ст. Ломоносовский проспект
1 мин
1 этаж
Смешанная
без мебели
с отделкой
Ирина Трейвас
Управляющий партнёр










