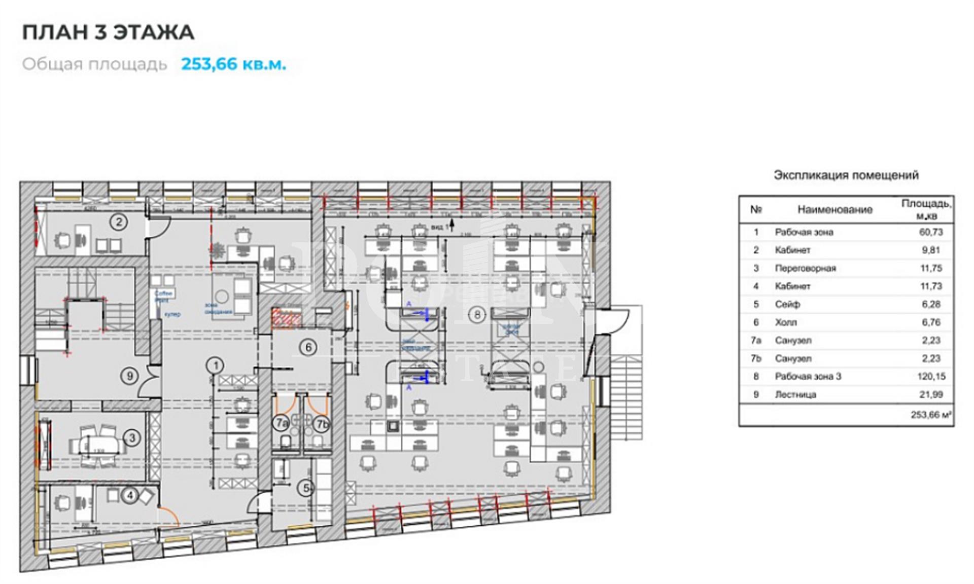
В продажу предлагается особняк в 100 метрах от метро "Серпуховская" и удобным выездом на Садовое кольцо. Здание не является памятником архитектуры. Общая площадь здания 1016 кв.м., всего 3 наземных этажа + подвал. Организовано несколько входных групп. Внутри сделан дизайнерский офисный ремонт, планировка приоритетно кабинетная, укомплектован мебелью. На данный момент в здании сидит арендатор на КДА. Перекрытия в здании - ж/б, высота потолков в подвале - 2,7 метра, на остальных этажах - 3,2 метра. Здание обеспечено современными инженерными системами, контролем доступа и круглосуточной охраной. Выделенная мощность на объект - 185 кВт. Назначение объекта: офисные и вспомогательные помещения. Площадь земельного участка - 348 кв.м. в долгосрочной аренде на 49 лет.
оставьте заявку
Похожие предложения
В торговом центре «МАЯК»
В административном здании «Волхонка улица, 9с1»
В административном здании «Кузнецкий Мост улица, 19с1»
Ирина Трейвас
Управляющий партнёр








