- Главная
- Городская элитная недвижимость
- Купить городскую недвижимость
- Апартаменты 204.6 м² В жилом доме «Four Seasons»
ID 57301
апартаменты 204.6 м² В жилом доме «Four Seasons»
ст. Охотный ряд
Охотный Ряд улица, 2
204.6 м²
3 комнаты
6 этаж
без мебели
без отделки
в пределах садового кольца
Описание
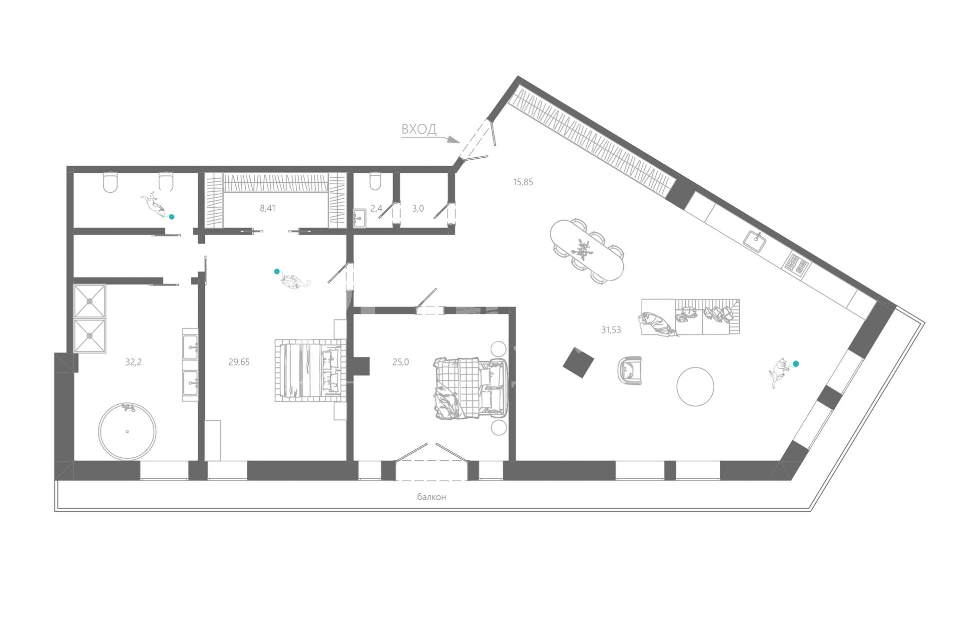
На продажу предлагаются угловые апартаменты свободной планировки, площадью 204,6 кв.м., в "Four Seasons Hotel Moscow", расположенном в здании гостиницы "Москва". Возможная планировка: кухня-гостиная с зоной столовой и выходом на балкон, спальня с гардеробной и санузлом, кабинет, две гардеробные, гостевой санузел, прихожая, балкон. Высота потолков - 3,3 м. Из окон открываются потрясающие виды на Кремль. Два машиноместа в подземном паркинге по запросу. Резидентам доступны все сервисы и инфраструктура 5*-отеля от лучшего мирового оператора. Удобная транспортная доступность и развитая инфраструктура района.
Первый этаж
кухня-гостиная, кабинет, спальня с гардеробной и санузлом, прихожая, гардеробная, гостевой санузел, балкон
Все характеристики
| Основные | |
|---|---|
| Площадь здания | 204.6 м² |
| Этаж | 6 Этаж |
| Количество комнат | 3 комнаты |
| Кол-во спален | 1 спальня |
| Кол-во санузлов | 2 санузла |
| Отделка | |
| Отделка | без отделки |
| Наличие мебели | без мебели |
Four Seasons
Описание объекта
Комплекс расположен у станции метро «Охотный Ряд», примерно в 100 метрах от Кремля и в пешей доступности от парка «Зарядье».
Узнайте больше О жилом доме
Посмотрите информацию об инфраструктуре, истории и других объектах недвижимости.
ПодробнееРасположение
Охотный Ряд улица, 2
оставьте заявку
Скачать презентацию в pdf
Похожие предложения
4-х комнатная квартира, 150 м²
В жилом комплексе «Victory Park Residences (Виктори Парк Резиденс)»
Братьев Фонченко улица, 1к4
ст. Парк победы
ст. Минская
2 этаж
с отделкой
с мебелью
Большой Афанасьевский переулок, 28
ст. Кропоткинская
7 мин
ст. Арбатская
5 мин
6 этаж
с отделкой
частично с мебелью
в пределах садового кольца
Богословский переулок, 12 а
ст. Пушкинская
9 мин
ст. Тверская
8 мин
ст. Чеховская
11 мин
2 этаж
с отделкой
с мебелью
в пределах садового кольца
клубный дом
дом, 528 м²
В коттеджном поселке «Екатериновка»
Рублевское шоссе
ст. Крылатское ,
3 мин
12 сот.
4 спальни
без отделки
Ирина Трейвас
Управляющий партнёр


