- Главная
- Городская элитная недвижимость
- Купить городскую недвижимость
- 5-ти комнатная квартира, 315 м² В жилом доме «Жуковского улица, 5»
ID 116094
5-ти комнатная квартира, 315 м² В жилом доме «Жуковского улица, 5»
Жуковского улица, 5
315 м²
5 комнат
4 этаж
с мебелью
с отделкой
в пределах садового кольца
Описание
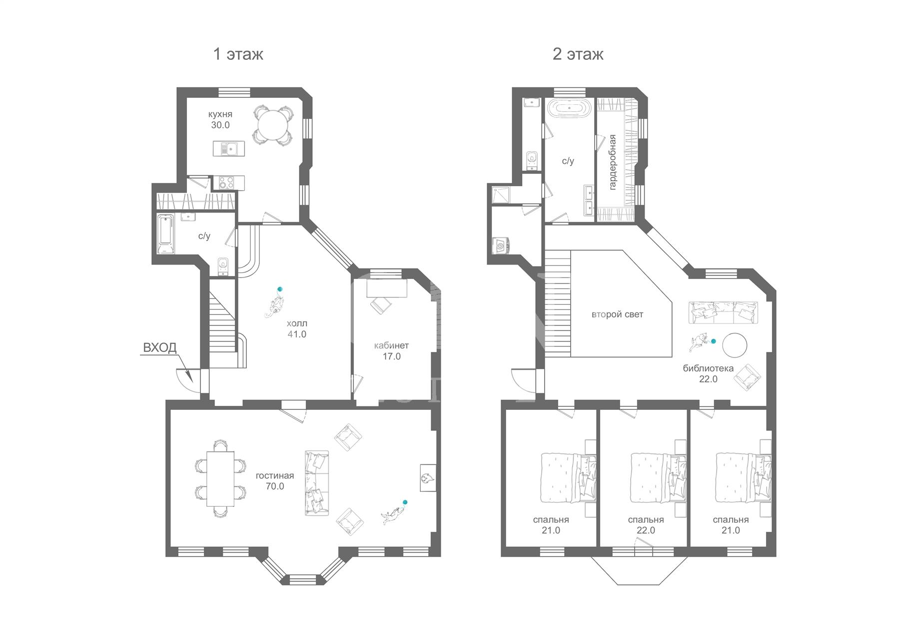
На продажу предлагается двухуровневая пятикомнатная квартира, площадью 315 кв.м., в районе Чистых прудов с эксклюзивным ремонтом. Планировка: 1-й уровень: гостиная со вторым светом, кухня с кладовой, кабинет, гостевой санузел, прихожая; 2-й уровень: гостиная, две спальни, гардеробная, раздельный санузел, постирочная, балкон. Главная особенность квартиры уникальная отделка, воплотивший в себе самые свежие и смелые дизайнерские идеи, поддерживающая архитектуру дома. Сохранены и отреставрированы многие исторические детали: деревянный паркетный пол, старинная лестница и галерея с балюстрадой, филигранная лепнина и роскошная хрустальная люстра. Жуковского, 5 - это исторический особняк на одной из тихих улочек района Чистые Пруды. Отремонтированный подъезд, парковка в огороженном дворе. В пешей доступности прогулочная зона бульвара, станции метро Чистые Пруды и Красные Ворота.
Первый этаж
гостиная, кабинет, кухня, прихожая, гостевой санузел
Второй этаж
гостиная, спальня, постирочная, гардеробная, раздельный санузел, балкон
Все характеристики
| Основные | |
|---|---|
| Площадь здания | 315 м² |
| Этаж | 4 Этаж |
| Количество комнат | 5 комнат |
| Кол-во спален | 2 спальни |
| Кол-во санузлов | 2 санузла |
| Отделка | |
| Отделка | с отделкой |
| Наличие мебели | с мебелью |
оставьте заявку
Скачать презентацию в pdf
Похожие предложения
4-х комнатная квартира, 150 м²
В жилом комплексе «Victory Park Residences (Виктори Парк Резиденс)»
Братьев Фонченко улица, 1к4
ст. Парк победы
ст. Минская
2 этаж
с отделкой
с мебелью
Капранова переулок, 4
ст. Баррикадная ,
7 мин
10 мин
ст. Краснопресненская
6 мин
ст. Улица 1905 года
3 этаж
с отделкой
с мебелью
в пределах садового кольца
Летниковская улица, 11к1
ст. Павелецкая ,
8 мин
18 мин
ст. Серпуховская
28 этаж
без отделки
в пределах садового кольца
видовая квартира
2-й Мосфильмовский переулок, вл.3
ст. Минская ,
14 мин
ст. Парк победы ,
13 мин
5 этаж
без отделки
без мебели
Ирина Трейвас
Управляющий партнёр
















