- Главная
- Городская элитная недвижимость
- Купить городскую недвижимость
- 7-ми комнатная квартира, 383 м² В жилом комплексе «Покровское-Глебово»
ID 115178
7-ми комнатная квартира, 383 м² В жилом комплексе «Покровское-Глебово»
ст. Водный стадион
Береговая улица, 8к1
383 м²
7 комнат
5 этаж
частично с мебелью
с отделкой
Описание
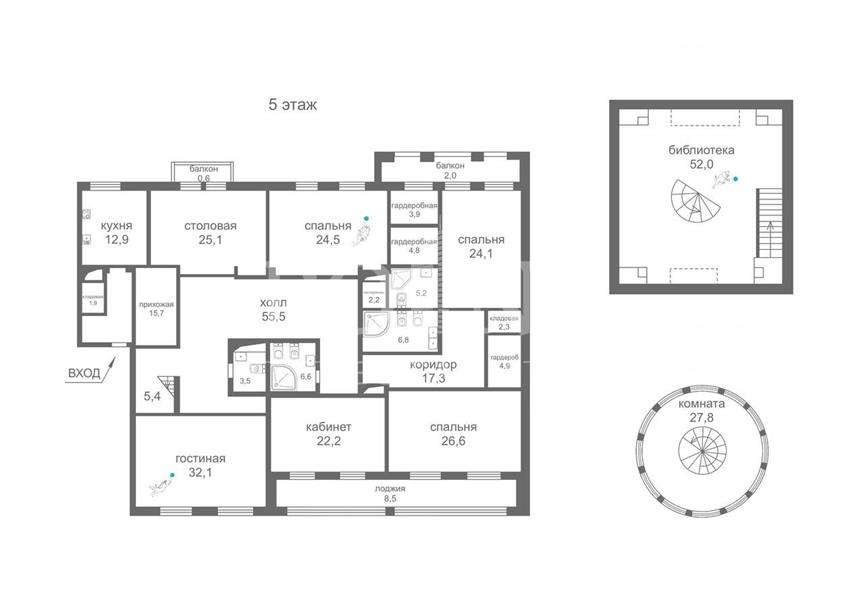
На продажу предлагается трехуровневая квартира, площадью 383 кв.м., расположенная в центральной части элитного жилого комплекса "Покровское-Глебово". Планировка: 1-й уровень: гостиная, кухня-столовая, четыре спальни, три совмещенных санузла, прихожая, три балкона; 2-й уровень: библиотека; 3-й уровень: гостиная. В квартире выполнен ремонт в классическом стиле с применением премиальных отделочных материалов. Квартира оснащена бытовой техникой Miele, эксклюзивной мебелью премиальных итальянских брендов и сантехникой ведущих производителей. Одно машиноместо в подземном паркинге по запросу.
Первый этаж
кухня-столовая, гостиная, спальня, прихожая, совмещенный санузел, балкон
Второй этаж
библиотека
Третий этаж
гостиная
Все характеристики
| Основные | |
|---|---|
| Площадь здания | 383 м² |
| Этаж | 5 Этаж |
| Количество комнат | 7 комнат |
| Кол-во спален | 4 спальни |
| Кол-во санузлов | 3 санузла |
| Отделка | |
| Отделка | с отделкой |
| Наличие мебели | частично с мебелью |
Покровское-Глебово
Общая информация
ЖК "Покровское-Глебово" построен в традициях русского классицизма. Это дворцово-парковая резиденция, где максимально точно воссоздается атмосфера дворянской усадьбы 19 века.
Обзор
Элитный жилой комплекс «Покровское-Глебово» находится на северо-западе столицы, практически на берегу Химкинского водохранилища. Рядом располагаются заповедные земли лесопарка Покровское-Стрешнево, элитный жилой комплекс «Покровский берег» и коттеджи американской деревни «Покровское-Hills».
Безопасность
Попасть на территорию жилого комплекса можно только через контрольно-пропускной пункт на въезде и после предъявления специального пропуска. Профессиональная охранная компания круглосуточно наблюдает за периметром с помощью видеокамер и патрулирует внутреннюю территорию. В доме установлена охранная сигнализация. Есть подземный паркинг на 194 места и гостевые стоянки, автомойка и автосервис.
Инфраструктура
Покровское-Глебово располагает обширной инфраструктурой: магазины, ресторан, детские учреждения, деловой центр. В шаговой доступности спорткомплекс, теннисные корты, яхт-клуб, закрытый пляж и лодочная станция на берегу водохранилища.
Узнайте больше О жилом комплексе
Посмотрите информацию об инфраструктуре, истории и других объектах недвижимости.
ПодробнееРасположение
Береговая улица, 8к1
оставьте заявку
Скачать презентацию в pdf
Похожие предложения
4-х комнатная квартира, 150 м²
В жилом комплексе «Victory Park Residences (Виктори Парк Резиденс)»
Братьев Фонченко улица, 1к4
ст. Парк победы
ст. Минская
2 этаж
с отделкой
с мебелью
Капранова переулок, 4
ст. Баррикадная ,
7 мин
10 мин
ст. Краснопресненская
6 мин
ст. Улица 1905 года
3 этаж
с отделкой
с мебелью
в пределах садового кольца
5-ти комнатная квартира, 315 м²
В жилом доме «Жуковского улица, 5»
Жуковского улица, 5
ст. Чистые пруды
7 мин
4 этаж
с отделкой
с мебелью
в пределах садового кольца
Летниковская улица, 11к1
ст. Павелецкая ,
8 мин
18 мин
ст. Серпуховская
28 этаж
без отделки
в пределах садового кольца
видовая квартира
Ирина Трейвас
Управляющий партнёр





















